


198 162 ₽/м²
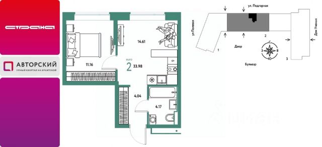
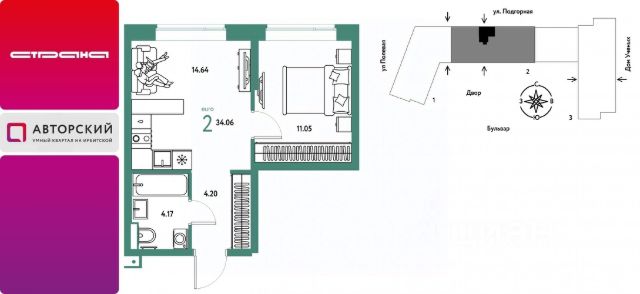
Новая квартира в ЖК "Авторский" напрямую от федерального застройщика "Страна Девелопмент". Продается 1комнатная квартира на 13 этаже от застройщика Страна Девелопмент. Площадь квартиры 33,25 кв. м. Жилой комплекс "Авторский" — квартал для авторов своей жизни от федерального застройщика "Страна Девелопмент" вблизи исторического центра — до Моста Влюблённых 4 минуты на авто, а ещё рядом ведущие вузы Тюмени. ПРЕИМУЩЕСТВА - Тематический бульвар объединяет дома и закрытые дворы квартала в единую экосистему: зелень, перголы для отдыха, детские и спортивные площадки. По вечерам бульвар преображается: освещение создаёт уютную атмосферу. - Новый детский сад рядом, который появится в 2026 году прямо в одном из корпусов комплекса. В нём выделено 150 мест для малышей. - Во дворах нет машин, шума, выхлопных газов и посторонних людей. Всё пространство разделено на зоны по интересам и возрастам. Для детей — игровые площадки из эко-материалов и мягкая защита от падений. Для взрослых — зоны отдыха, воркаут-площадки и тропинки для неспешных прогулок. ОТДЕЛКА Квартиры сдаются с предчистовой отделкой: произведена разводка электричества и отопления, выполнена стяжка пола, стены выровнены "под маяк", установлены розетки, выключатели и радиаторы. ДИЗАЙНЕРСКАЯ ОТДЕЛКА При покупке квартиры в ЖК "Авторский" можно включить стоимость ремонта в ипотеку. Пять вариантов на выбор: хлопковая нить, серый шторм, белый камень, шалфей, голубой вереск. СПОСОБЫ ПОКУПКИ Сотрудники "Страна Девелопмент" будут сопровождать вас на каждом этапе сделки, помогут получить одобрение по ипотеке или снизить ежемесячный платеж. - ипотека - рассрочка - с использованием материнского капитала -100% оплата наличными Цены на квартиры указаны без учета скидок. На консультации менеджер подскажет, какие акции действуют, и как получить одобрение по ипотеке с низкой ставкой.
























































































