150 633 ₽/м²
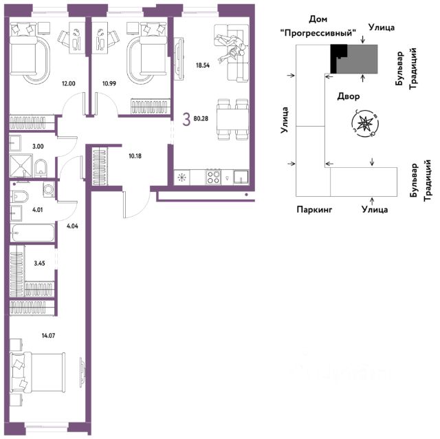
id:44820. Продаётся уютная 1-комнатная квартира в новостройке, которая сразу привлекает внимание своим стильным дизайном и высоким качеством ремонта. Квартира формата 1+ представляет собой идеальное сочетание просторной кухни-гостиной и отдельной спальной комнаты. Ремонт выполнен из качественных материалов, что гарантирует долговечность и сохранение привлекательного внешнего вида на долгие годы. На полу постелен кварцвинил, который отличается своей прочностью и устойчивостью к истиранию. Для дополнительного комфорта предусмотрены пол и одна стена в ванной комнате с подогревом, что создаёт атмосферу уюта в холодное время года. Особое внимание уделено освещению - оно зонировано, что позволяет создавать различные атмосферы в зависимости от времени суток и настроения. Квартира идеально подойдёт тем, кто ценит комфорт и качество. Преимуществом является то, что в квартире никто не жил, поэтому новые владельцы смогут насладиться свежестью и чистотой нового жилья. Это отличная возможность стать обладателем квартиры своей мечты! Жилой комплекс Краснолесье расположен в живописном месте недалеко от парка Затюменский. При покупке квартиры с нами вы получаете: 1) БЕСПЛАТНОЕ одобрение ипотеки 2) Индивидуальная СКИДКА на процентную ставку от наших банков-партнеров 3) БЕСПЛАТНАЯ юридическая проверка любого объекта недвижимости 4) Полное БЕСПЛАТНОЕ юридическое сопровождение на всех этапах сделки. - Пишите, звоните, наша компания работает для вас 24/7















































































