Первичная продажа
С отделкой
сдача ГК: 4 кв. 2026 года
5 642 105 ₽
182 003 ₽/м²
Новая квартира в ЖК "Домашний" напрямую от федерального застройщика "Страна Девелопмент".
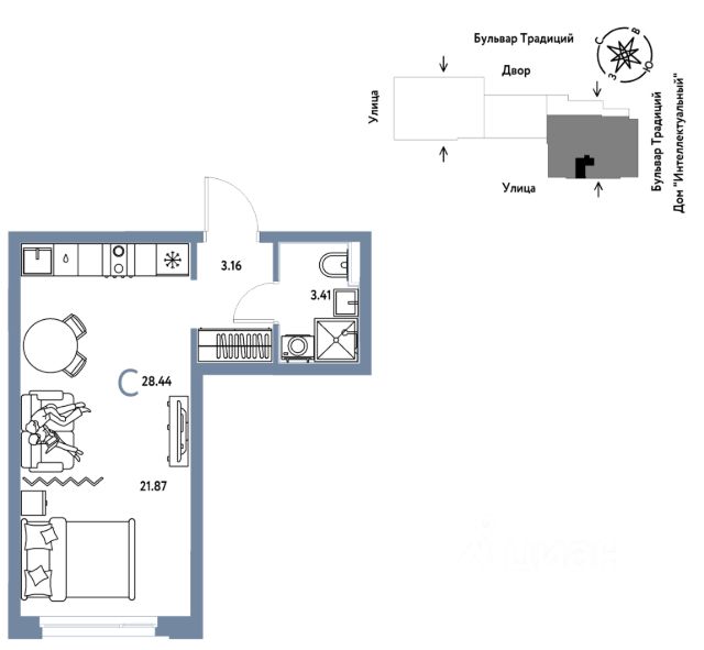
Продается 1комнатная квартира на 13 этаже от застройщика Страна Девелопмент. Площадь квартиры 31 кв. м.
Жилой комплекс "Домашний" — первый цифровой район от федерального застройщика "Страна Девелопмент" с фитнес-центром, паркингом и бульваром. В 5 минутах пешком сквер для прогулок и школа 95.
Преимущества
Новый фитнес-центр с бассейном откроется в ЖК "Домашний". В спортклубе будет 2 бассейна, просторный тренажерный зал, залы для групповых занятий и детских тренировок, а также сауны и хаммам.
Внутри микрорайона появится огромный пешеходный бульвар — бульвар Традиций. Место для прогулок, занятий спортом и встреч с друзьями. Центром притяжения станут открытые пространства для отдыха жителей и гостей микрорайона, которые легко меняются под сезонные сценарии отдыха: новогодняя ёлка, ярмарки, кинопоказы и т.д.
В шаговой доступности расположены "Катран" — торговый центр, созданный специально для жителей "Домашнего" и ближайшего района, а также гипермаркет "Перекрёсток". Не нужно никуда ехать, чтобы сделать необходимые покупки и закрыть ежедневные бытовые потребности.
По периметру работает служба охраны, во дворе и в парадной дома — камеры видеонаблюдения. Доступ к камере через мобильное приложение есть у каждого жителя.
Отделка
Квартиры сдаются с предчистовой отделкой: произведена разводка электричества и отопления, выполнена стяжка пола, стены выровнены "под маяк", установлены радиаторы.
Дизайнерская отделка
При покупке квартиры в ЖК "Домашний" можно включить стоимость ремонта в ипотеку. 4 стиля отделки ванной и 5 стилей отделки комнат на выбор. Включено всё — обои, ламинат, натяжной потолок и даже кондиционер. Также для вас есть четыре варианта ремонта в ванной — акриловая ванна с экраном, смеситель с лейкой, подвесной унитаз, зеркало с подсветкой. Останется только разместить мебель!
Кухня от застройщика
Одна из удобных опций от Страны — приобретение кухни в ипотеку при покупке опции "Ремонт". Доступно 4 стиля на выбор: дерево, керамика, мрамор, бетон.
Умный дом
Система "Умный дом" создаст новый уровень комфорта. Управление светом с помощью голоса, получение последней информации о ситуации в квартире во время отпуска или рабочего дня — и другие преимущества включены в пакет.
Способы покупки
Сотрудники "Страна Девелопмент" будут сопровождать вас на каждом этапе сделки, помогут получить одобрение по ипотеке или снизить ежемесячный платеж.
- ипотека
- рассрочка
- с использованием материнского капитала
- 100% оплата наличными




























































































