


217 483 ₽/м²
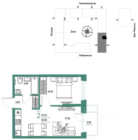
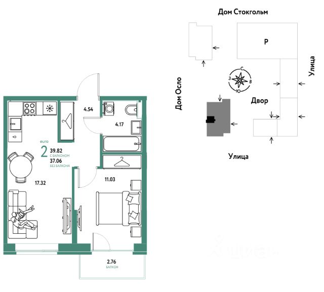
Объявление от застройщика Страна Девелопмент. Покупка квартиры защищена банком. Продается 2комнатная квартира на 4 этаже от застройщика Страна Девелопмент. Площадь квартиры 39,39 кв. м. Стоимость указана без учета акций. Европейский берег 2.0. — это продолжение легендарного жилого комплекса Европейский берег. Он включает все, что нужно для жизни, и даже больше. Этот квартал для тех, кто не готов тратить время на ненужное, жертвовать одним ради другого. Для тех, кто хочет получить все и сразу. Именно поэтому генеральная идея проекта — жилой квартал все включено. Все преимущества включены. Никаких исключений. ПРЕИМУЩЕСТВА Разнообразие планировок: от классических до квартир с мастер-спальней и террасами. Подземный паркинг с кладовыми, охраной и видеонаблюдением 24/7. Ремонт от застройщика: 5 вариантов на выбор. Закрытый двор с площадками и зонами отдыха: мост-акведук, тренажёры, лабиринты, гамаки и шезлонги. ОТДЕЛКА Базовая отделка или готовый ремонт от застройщика. В базовой отделке все черновые работы выполнены, подведены коммуникации, стены оштукатурены под маяк. В ремонт от застройщика входит 5 вариантов отделки, уже включено всё необходимое: от сантехники до кондиционера. СПОСОБЫ ПОКУПКИ Сотрудники "Страны Девелопмент" будут сопровождать вас на каждом этапе сделки, помогут получить одобрение по ипотеке или снизить ежемесячный платеж. - ипотека - материнский капитал - 100% оплата наличными - рассрочка - обмен — это выкуп вашей старой квартиры и зачисление полученных денежных средств в счет стоимости новой квартиры или в качестве первоначального взноса по ипотеке.




































































































































































