Первичная продажа


Стандартная ипотека 7,5%
ещё 8 акций
С отделкой
сдача ГК: 4 кв. 2028 года
8 631 579 ₽
187 970 ₽/м²
Новая квартира в ЖК "Остров-сад" напрямую от федерального застройщика "Страна Девелопмент".
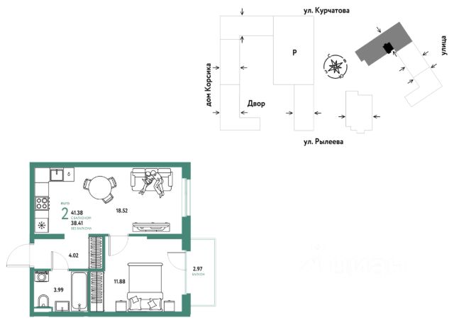
Продается 2комнатная квартира на 6 этаже от застройщика Страна Девелопмент. Площадь квартиры 45,92 кв. м.
Жилой комплекс "Остров-сад" — квартал от федерального застройщика "Страна Девелопмент" в районе ДОК-а. Микрорайон окружён Турой с трёх сторон, а находится в 10 минутах от Цветного бульвара на авто. Внутри бульвар "Открытий", благоустроенная набережная для прогулок и живописная природа вокруг.
Преимущества
У каждого дома обустроен приватный двор с зонами для активного и спокойного отдыха. В активной зоне детские разновозрастные площадки с горками, песочницами и качелями, воркаут-зоны. В спокойной — релакс-зоны на свежем воздухе: шезлонги, большие качели под навесом, удобные кресла и беседки для душевных разговоров, уютной атмосферу сделает обильное озеленение.
В проекте запланировано 3 детсада и 2 школы.
ЖК построен по принципу мини-города. Всё необходимое для жизни внутри микрорайона. В шаговой доступности — магазины, аптеки, парикмахерские, пекарни, семейные кафе и уютные кофейни
Отделка
Квартиры сдаются с предчистовой отделкой: произведена разводка электричества и отопления, выполнена стяжка пола, стены выровнены "под маяк", установлены радиаторы.
Дизайнерская отделка
При покупке квартиры в ЖК "Остров-сад" можно включить стоимость ремонта в ипотеку. 4 стиля отделки ванной и 5 стилей отделки комнат на выбор. Включено всё — обои, ламинат, натяжной потолок и даже кондиционер. Также для вас есть четыре варианта ремонта в ванной — акриловая ванна с экраном, смеситель с лейкой, подвесной унитаз, зеркало с подсветкой. Останется только разместить мебель!
Кухня от застройщика
Одна из удобных опций от Страны — приобретение кухни в ипотеку при покупке опции "Ремонт". Доступно 4 стиля на выбор: дерево, керамика, мрамор, бетон.
Умный дом
Система "Умный дом" создаст новый уровень комфорта. Управление светом с помощью голоса, получение последней информации о ситуации в квартире во время отпуска или рабочего дня — и другие преимущества включены в пакет.
Способы покупки
Сотрудники "Страна Девелопмент" будут сопровождать вас на каждом этапе сделки, помогут получить одобрение по ипотеке или снизить ежемесячный платеж.
- ипотека
- рассрочка
- с использованием материнского капитала
- 100% оплата наличными






































































































































