109 499 ₽/м²
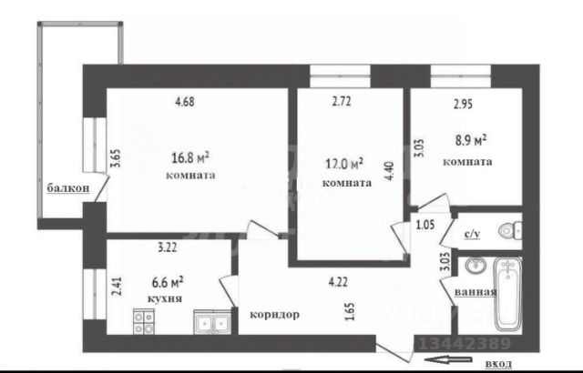
Продается великолепная трех комнатная квартира-распашенка, на 3 этаже в кирпичном доме! Сделана перепланировка еще от застройщика, все документы есть! Дом расположен в берёзовом парке. Рядом с домом детский сад номер 172 (150метров) и Лицей номер 81 (200метров). В доме всего 28 квартир, в котельной дома установлен клапан регулятор температуры отопления, видеонаблюдение. Удобная транспортная развязка,до центра 15минут. Остановка общественного транспорта в непосредственной близости. В радиусе 10мин пешком: поликлиники взрослая и детская, два рынка, аптеки, магазины, спортивная школа, библиотека, банк. До Гагаринского парка 2,5 км. В квартире современный ремонт, при продаже остаётся: кухонный гарнитур , вытяжка MBS, посудомоечная машина Bosch, встроенная стиральная машина Ariston, духовой шкаф Ariston, холодильник Electrolux, варочная панель Hotpoint Ariston, водонагреватель Electrolux. Сантехника: инсталляция GROHE, электрический полотенцесушитель. Мебель: гарнитур в прихожей, обувница, комната 1: кровать и шкаф-купе; комната 2: кровать, шкаф гардеробный, компьютерный стол, гостиная: мебельный гарнитур, кровать; балкон: шкаф. Пол в ванной: плитка и теплый пол. Коридор и кухня: плитка. Две комнаты: кварцвинил Гостиная пол: ламинат. В ванной ремонт сделан полтора года назад, в одной детской год назад, во второй детской два месяца назад. Покажет в удобное для вас время! МЫ ГАРАНТИРУЕМ ФИНАНСОВУЮ БЕЗОПАСНОСТЬ ДЛЯ НАШИХ КЛИЕНТОВ. Код пользователя: 196198 Номер в базе: 1271749 3-комнатная квартира в микрорайоне Ватутино в городе Тюмень.













































































