


196 404 ₽/м²
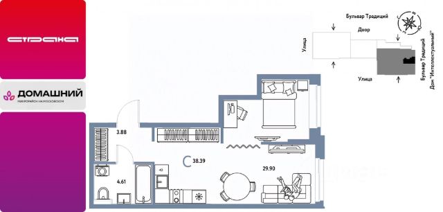
1-комн. квартира-студия от застройщика с предчистовой отделкой в ЖК "Айвазовский City" на 2 этаже. Общая площадь: 41.16 кв.м., площадь гостиной 31.52 кв.м., из которых 5 кв.м. выделено под кухонную зону. Угловая квартира, окна oбecпeчивaют paвнoмepнoe ocвeщeниe в тeчeниe дня. В квартире один совмещенный санузел. Высота потолков 2.7 м. Дом монолитный, многоподъездный, высотой 24 этажа. Квартира находится в 4-й секции в корпусе ГП-13. На этаже 6 квартир. В подъезде 1 пассажирский и 1 грузовой лифт. Окончание строительства - 4 квартал 2027 года. Оформление сделки по договору долевого участия. Новый жилой район располагается в живописном месте на берегу Туры в центральной части города. Принципиально новое пространство для жизни в центре современного города для тех, чьи мечты сбываются, кто нацелен на постоянный рост, перемены к лучшему для себя и своих близких. Каждая деталь Айвазовский City вдохновляет и заряжает на новые свершения: авторская архитектура, сбалансированная продуманная инфраструктура, дизайнерские дворы со спортивными и детскими площадками, парковые зоны с фонтанами, водный канал, украшающий центральный прогулочный маршрут района и многое другое. В 2019 года проект стал лауреатом престижной премии Urban Awards 2019 в номинации "Лучший строящийся региональный жилой комплекс бизнес-класса". Главная особенность Айвазовский City - соседство разных архитектурных школ в рамках одного дома. Изысканная классика, выразительная эклектика и оригинальный модерн - жить в одном из таких домов настоящий повод для гордости. Айвазовский City это идеальное сочетание комфорта, технологий и развитой инфраструктуры. Вход в подъезд возможен с улицы и со двора. Отправляясь на работу или за покупками, жители могут выйти с внешней стороны дома, а для прогулки с ребенком со стороны двора. Экологически чистые материалы и энергосберегающие технологии, качественное освещение общественных зон, видеонаблюдение по всей территории жилого района (в том числе в подъездах, лифтах и в подземном паркинге), закрытые дворы с доступом только для жителей Айвазовский City. Часть домов в Айвазовский City будут оснащены подземным паркингом. Востребованный в нашем климатическом поясе формат хранения автомобилей защитит собственность владельца в любое время года. Аккредитация в банках: ОАО "Альфа-Банк", ПАО "Газпромбанк", ПАО Банк "ВТБ", "Сбербанк России", АО "ДОМ.РФ" и других. #zmVgm8 Продается квартира-студия 40 м2 в Тюмени.



















































































































