


202 503 ₽/м²
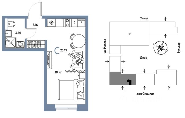
Новая квартира в ЖК "Остров-сад" напрямую от федеральной группы компаний "Страна Девелопмент". Финансовый партнер — Сбербанк России. Продается 1комнатная квартира на 6 этаже от застройщика Страна Девелопмент. Площадь квартиры 25,13 кв. м. ЖК "ОСТРОВ-САД" Жилой комплекс ЖК "Остров-сад" — новый квартал в районе ДОК в Тюмени недалеко от центра. Внутри ЖК планируется несколько школ и детсадов, торговая галерея, своя набережная, закрытые дворы-сады, несколько подземных и многоуровневых паркингов и пешеходный бульвар. Архитектура комплекса отсылает к истории ДОКа — отделка из красного кирпича, акцентные цвета штукатурки и необычная ступенчатая форма зданий. Всё для комфортной жизни на своём "острове" рядом с центром Тюмени. ПРЕИМУЩЕСТВА Квартиры с готовым ремонтом, возможность приобрести квартиру с кухонным гарнитуром и техникой. Развитое жилое пространство — закрытые дворы-сады, свои набережная и бульвар, торговая галерея на 1-м этаже, рядом детсады, школы и поликлиника. Служба охраны и видеонаблюдение в доме и во дворе 24/7. Несколько многоуровневых и подземных паркингов с охраной. ОТДЕЛКА Необходимые работы уже выполнены: подведены холодная, горячая вода и электричество, установлены батареи. В квартире не проводились отделочные работы: не выровнены стены и пол. ДИЗАЙНЕРСКАЯ ОТДЕЛКА В ЖК "Остров-сад" есть квартиры с готовым ремонтом. Пять вариантов на выбор в разных цветовых решениях. В ремонт также включены светильники, межкомнатные двери и даже кондиционер. Можно выбрать отдельно ремонт в ванной, для вас 4 стильных варианта с сантехникой. СПОСОБЫ ПОКУПКИ Сотрудники "Страна Девелопмент" будут сопровождать вас на каждом этапе сделки, помогут получить одобрение по ипотеке или снизить ежемесячный платеж. - ипотека - материнский капитал - 100% оплата наличными - рассрочка от застройщика 0%







































































































