


199 968 ₽/м²
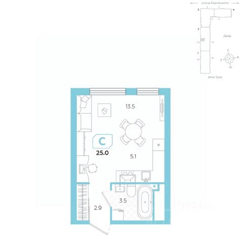
Уютная студия обладает правильной геометрией, что позволяет максимально эффективно использовать пространство. Просторная кухня-гостиная площадью становится идеальным местом для совместного времяпрепровождения с друзьями или семейных вечеров. Здесь легко расположить все необходимое: от обеденной зоны до комфортного места для отдыха, создавая атмосферу уюта и гармонии. Вместительная ванная комната площадью предлагает все удобства для комфортного использования. Коридор с предусмотренным местом под шкаф добавляет функциональности и удобства, позволяя организовать хранение вещей без ущерба для эстетики. Это решение помогает поддерживать порядок и создает уютную атмосферу в студии. Эта квартира идеально подходит для тех, кто ценит стильный, современный дизайн и хочет жить в функциональном пространстве, где каждый элемент продуман до мелочей




















































































































































