235 822 ₽/м²
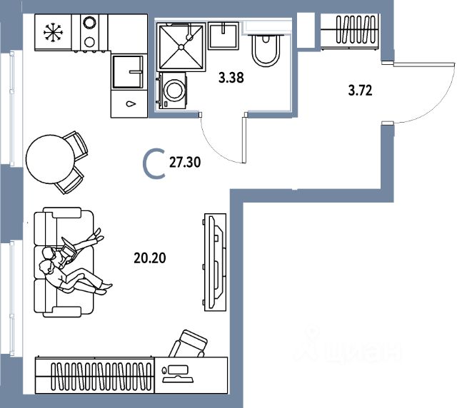
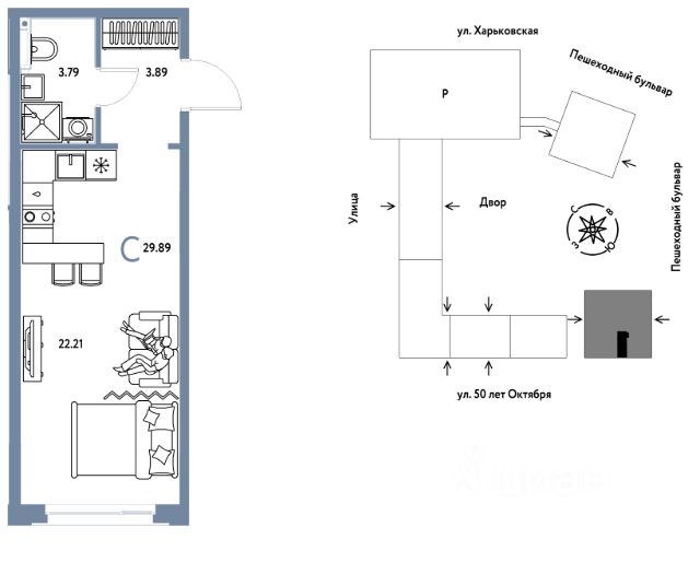
Продаётся студия в строящемся доме (Квартал Экологов (ГП-6)), срок сдачи: II-кв. 2026, общей площадью 20.49 кв.м., на 15 этаже. Новый жилой комплекс "Сердце Сибири" расположился в центре Тюмени в границах улиц 50 лет Октября-Пермякова-Харьковская. Проект комплекса включает 8 домов переменной этажности с многоуровневыми паркингами, большой бульвар для пеших прогулок и детский сад под окнами. Дома квартального типа образуют тихие приватные дворы, закрытые от машин и случайных прохожих.

















































