Мы используем куки-файлы. Соглашение об использовании
Помещение свободного назначения, 37,8 м²
Площадь37,8 м²
Этаж5 из 6
Отчёт о привлекательности объектаУзнайте, насколько помещение и район подходят для вашего бизнеса
Что входит в отчёт
  • Охват населения
  • Пешеходный трафик
  • Автомобильный трафик
  • Средний бюджет семьи по району
  • Арендные ставки рядом
  • Точки притяжения
  • Конкуренты в радиусе 1 км
  • Рекомендации по выбору места для бизнеса
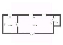
Арт. 127623016 Сдается в аренду помещение свободного назначения в центре города, в ТЦ Центральный. Помещение подойдет под офис, салон, студию, сервис. Расположено на 5 этаже. Два смежных кабинета 25 и 10 кв.м. Есть свой санузел. Пол - плитка, потолок подвесной, пластиковые окна, кондиционер. Потолок 3 метра. В здании 2 лифта, эскалаторы. На 1-4 этажах расположен торговый центр, на 5-6 - офисы, салоны, студии. Звоните, показ в удобное время.
lock

Войдите или зарегистрируйтесь
для просмотра информации

Просматривайте условия сделки и всю информацию об объекте
Сохраняйте фильтры в поиске и не вводите заново
Доступ к избранному с любого устройства
Неограниченное добавление в избранное
Позвоните автору
Вам ответят на все вопросы
Остались вопросы по объявлению?
Позвоните владельцу объявления и уточните необходимую информацию.
  • Инфраструктура
  • Похожие рядом
Помощь надёжных риелторов
Риелтор партнёр Циан поможет купить или продать любую недвижимость
20 000 ₽/мес.

Прямая аренда (от года), обеспечительный платёж 20000 ₽, предоплата за 1 месяц

281 $/мес.
242 /мес.
Цена за метр
6 350 ₽ в год
Налог
УСН
Комиссия
нет
Коммунальные платежи
не включены
Эксплуатационные расходы
не включены
Агентство недвижимости
Суперагент
На Циан
6 лет
Объектов в работе
более 1000