Мы используем куки-файлы. Соглашение об использовании
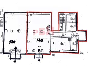
Помещение свободного назначения, 170 м²

Сдается помещение свободного назначения, 170 м²

Площадь170 м²
Этаж1 из 5
Отчёт о привлекательности объектаУзнайте, насколько помещение и район подходят для вашего бизнеса
Что входит в отчёт
  • Охват населения
  • Пешеходный трафик
  • Автомобильный трафик
  • Средний бюджет семьи по району
  • Арендные ставки рядом
  • Точки притяжения
  • Конкуренты в радиусе 1 км
  • Рекомендации по выбору места для бизнеса
Предлагается в аренду помещение под общепит на трафике, в центральном районе Тюмени БЕЗ КОМИССИИ ДЛЯ АРЕНДАТОРА!!! перекресток улиц Холодильная и Республики; активный пешеходный трафик, в шаговом доступе офис Транснефти, ТГУ-Факультет дизайна, многочисленные офисы других компаний, общественные остановки в любую точку города; центральный вход с ул. Холодильная, +запасной выход/разгрузка; возможно увеличение площади до 270 кв. м. ; высота потолков 3. 4 м; мощность -35 кВт; вытяжка; мокрые точки; Коммунальные платежи в стоимость аренды не включены Более подробную информацию уточняйте у наших специалистов. ------------------------------------------------- ----- "Регион Бизнес Недвижимость" Коммерческая недвижимость Без комиссии для арендаторов Арт. 20733052
lock

Войдите или зарегистрируйтесь
для просмотра информации

Просматривайте условия сделки и всю информацию об объекте
Сохраняйте фильтры в поиске и не вводите заново
Доступ к избранному с любого устройства
Неограниченное добавление в избранное
Позвоните автору
Вам ответят на все вопросы
Остались вопросы по объявлению?
Позвоните владельцу объявления и уточните необходимую информацию.
  • Инфраструктура
  • Похожие рядом
  • Общая площадь170 м²
Центральное отопление
Помощь надёжных риелторов
Риелтор партнёр Циан поможет купить или продать любую недвижимость
306 000 ₽/мес.

Прямая аренда (от года), обеспечительный платёж 374000 ₽

4 087 $/мес.
3 486 /мес.
Цена за метр
21 600 ₽ в год
Налог
УСН
Комиссия
нет
Коммунальные платежи
не включены
Эксплуатационные расходы
не включены
Агентство недвижимости
Суперагент
На Циан
7 лет
Объектов в работе
более 1000