Мы используем куки-файлы. Соглашение об использовании
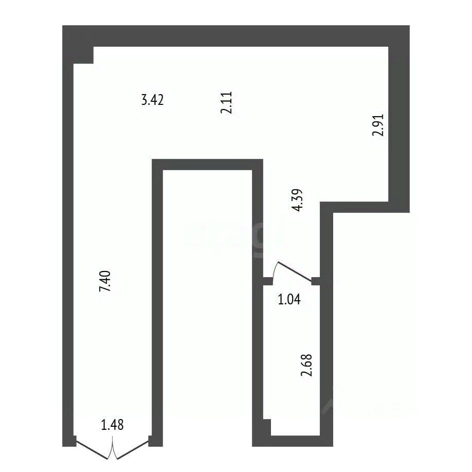
Помещение свободного назначения, 25,5 м²

Продается помещение свободного назначения, 25,5 м²

Площадь25,5 м²
Этаж-1 из 14
ПомещениеСвободно
Отчёт о привлекательности объектаУзнайте, насколько помещение и район подходят для вашего бизнеса
Что входит в отчёт
  • Охват населения
  • Пешеходный трафик
  • Автомобильный трафик
  • Средний бюджет семьи по району
  • Арендные ставки рядом
  • Точки притяжения
  • Конкуренты в радиусе 1 км
  • Рекомендации по выбору места для бизнеса
Продаётся помещение свободного назначения 25,5 м2 на цокольном этаже, на первой линии габ, вход с улицы с действующим арендатором. Соседи, генерерующие трафик: Озон, Тренажёрный зал, Бьюти и тату салон, кофейня, соседнее крыльцо -Дарк Стор Самоката. КЛЮЧЕВЫЕ ПОКАЗАТЕЛИ: Расположено в Многоквартирном жилом доме на цокольном этаже Площадь помещения: 25,5 м² В настоящее время сдаётся под сервисно-ремонтный центр и продажа техники, арендная ставка 16000 в месяц. Достойная входная группа с комфортным спуском с перилами и лестницами. Свободная большая парковка, Подходит под другие виды бизнеса ТЕХНИЧЕСКИЕ ХАРАКТЕРИСТИКИ: Розетки по периметру офиса Санузел на этаже Круглосуточный доступ Вытяжная вентилляция Система пожарной сигнализации ЛОКАЦИЯ И ИНФРАСТРУКТУРА: Центральный район города Развитая инфраструктура вокруг + новая жилая застройка Удобная транспортная доступность с любой точки города ФОРМАТ СДЕЛКИ: Вся сумма в договоре В настоящее время бронь помещения фиксируется задатком. ОБРАТИТЕ ВНИМАНИЕ! ПОКУПКА КОММЕРЧЕСКОЙ НЕДВИЖИМОСТИ ЧЕРЕЗ КОМПАНИЮ "ЭТАЖИ" БЕЗ КОМИССИИ ДЛЯ ПОКУПАТЕЛЯ! Подходит для: Код пользователя: 125317 Номер в базе: 12108425
lock

Войдите или зарегистрируйтесь
для просмотра информации

Просматривайте условия сделки и всю информацию об объекте
Сохраняйте фильтры в поиске и не вводите заново
Доступ к избранному с любого устройства
Неограниченное добавление в избранное
Позвоните автору
Вам ответят на все вопросы
Остались вопросы по объявлению?
Позвоните владельцу объявления и уточните необходимую информацию.
  • Инфраструктура
  • Похожие рядом
  • Общая площадь25,5 м²
Помощь надёжных риелторов
Риелтор партнёр Циан поможет купить или продать любую недвижимость
РиелторЭтажи Тюмень
Документы проверены
2 030 000 ₽
26 624 $
22 774
Цена за метр
79 608 ₽
Налог
УСН
Агентство недвижимости
Документы проверены
На Циан
8 лет
Объектов в работе
более 5000