Мы используем куки-файлы. Соглашение об использовании
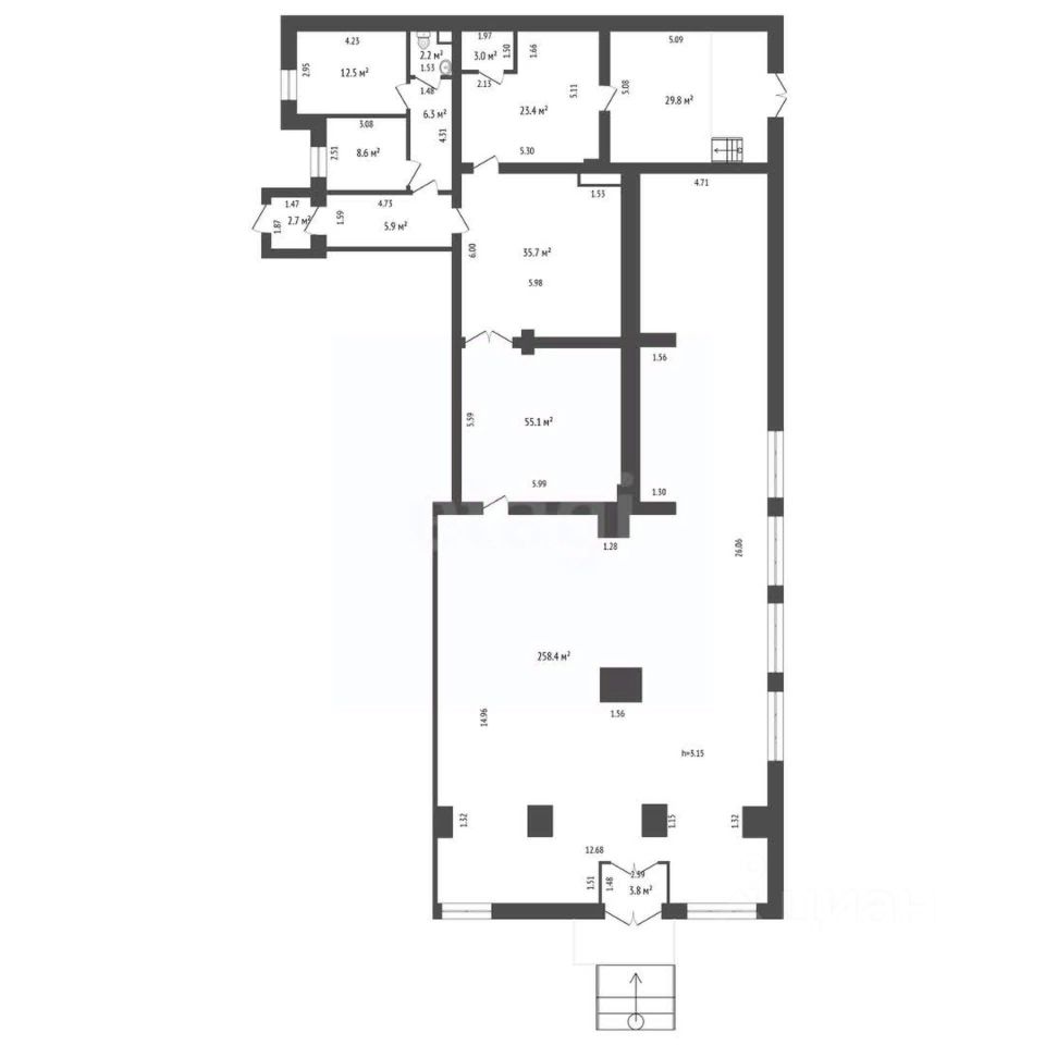
Помещение свободного назначения, 407,7 м²

Продается помещение свободного назначения, 407,7 м²

Площадь407,7 м²
Этаж1 из 9
ПомещениеСвободно
Отчёт о привлекательности объектаУзнайте, насколько помещение и район подходят для вашего бизнеса
Что входит в отчёт
  • Охват населения
  • Пешеходный трафик
  • Автомобильный трафик
  • Средний бюджет семьи по району
  • Арендные ставки рядом
  • Точки притяжения
  • Конкуренты в радиусе 1 км
  • Рекомендации по выбору места для бизнеса
БЕЗ КОМИССИИ ДЛЯ ПОКУПАТЕЛЯ. ПРОДАМ(ГАБ) с федеральной торговой сетью "Fix Price" и 5 офисов . Преимущества инвестиций: • Надежный арендатор. • Долгосрочный договор: Действующий договор аренды на 5 лет с ежегодной индексацией (подтверждающие документы предоставляются). Договор аренды заключен 01.12.2025г - 01.12.2025года Основные характеристики: Площадь: 407,7 м². Этаж: 1. • Арендный доход: 328 000 ₽ в месяц (уже за вычетом расходов!) • Срок окупаемости: 17 лет (подтверждено действующим договором аренды). Отдельный вход: Да, два входа обеспечивают удобный доступ. Расположение: Помещение находится на первой линии, что гарантирует высокий пешеходный и автомобильный трафик, обеспечивая отличную видимость и доступность для клиентов. Инфраструктура: Парковка: Есть парковочные места. Транспортная доступность: Отличная транспортная доступность, удобные подъезды. Мощность: Выделенная мощность — 25 кВт. Системы: Центральное отопление, водоснабжение и канализация. Планировка: Тип планировки: Свободная, что позволяет гибко организовать пространство под разные виды бизнеса. Высота потолков: 3 м, что создает ощущение простора. Состояние: Помещение с чистовой отделкой, готово к использованию. Безопасность: Наличие системы видеонаблюдения. Пожарная сигнализация и система пожаротушения. Пультовая охрана и вентиляция для обеспечения комфорта и безопасности. Дополнительная информация: На данный момент помещение сдано в аренду и приносит стабильный доход. Отличная инвестиционная привлекательность с постоянным доходом от арендатора. Без комиссии для покупателя! Мы готовы ответить на все вопросы и организовать просмотр в удобное для вас время. ОБРАТИТЕ ВНИМАНИЕ! ПОКУПКА КОММЕРЧЕСКОЙ НЕДВИЖИМОСТИ ЧЕРЕЗ КОМПАНИЮ "ЭТАЖИ" БЕЗ КОМИССИИ ДЛЯ ПОКУПАТЕЛЯ! Подходит для: Код пользователя: 202654 Номер в базе: 4334163
lock

Войдите или зарегистрируйтесь
для просмотра информации

Просматривайте условия сделки и всю информацию об объекте
Сохраняйте фильтры в поиске и не вводите заново
Доступ к избранному с любого устройства
Неограниченное добавление в избранное
Позвоните автору
Вам ответят на все вопросы
Остались вопросы по объявлению?
Позвоните владельцу объявления и уточните необходимую информацию.
  • Инфраструктура
  • Похожие рядом
  • Общая площадь407,7 м²
Помощь надёжных риелторов
Риелтор партнёр Циан поможет купить или продать любую недвижимость
РиелторЭтажи Тюмень
Документы проверены
67 000 000 ₽
880 959 $
747 555
Цена за метр
164 337 ₽
Налог
УСН
Агентство недвижимости
Документы проверены
На Циан
8 лет
Объектов в работе
более 5000