


176 075 ₽/м²
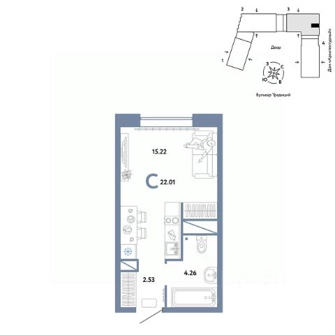
Продаётся 1-комнатная квартира на 12 этаже в ЖК "Мотивы". Квартал расположен на Московском тракте — всего в 5 минутах от Плехановского бора. Рядом ТРЦ "Колумб" с кинотеатром, боулингом и ресторанами, новые дорожные развязки, а в 2026 году начнётся строительство школы на 1201 место. Свой парк под окнами Всего в нескольких шагах от дома расположен благоустроенный парк с площадками для командных видов спорта, детскими комплексами, уютной подсветкой и благоустроенными прогулочными аллеями. Всё, чтобы отдыхать активно и с удовольствием. Торговая галерея На первом этаже каждого дома предусмотрена коммерческая галерея. В проекте уже открыты супермаркеты, аптеки, пункты выдачи товаров. Список продолжает пополняться, чтобы от шоппинга вас отделала только поездка на лифте. Безопасные дворы Дворы закрыты от машин и посторонних, поэтому детям можно гулять, играть и познавать мир самостоятельно. Для родителей — спокойствие, для малышей — свобода и развитие. Подъезды с колясочными до 87 м² Вы почувствуете себя дома уже при входе в подъезды. Они встречают светлыми входными группами, мягкими зонами ожидания с диванами, лапомойными и большими колясочными, где поместится весь детский транспорт. Разные варианты отделки White Box — идеальный вариант для реализации вашего дизайн-проекта. Отделка включает все "грязные" работы: от цементно-песчаной стяжки пола и оштукатуривания стен до установки радиаторов и выключателей. Чистовая отделка — три стильных цветовых решения: светлый, тёмный или натуральный. Выбирайте его и заселяйтесь сразу после получения ключей.




























































































































