


276 625 ₽/м²
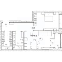
Квартира в счёт первоначального взноса по программе обмена. Информация по телефону, мы вам все подробно расскажем! Продаются 1-комн. апартаменты от застройщика в ЖК "1А Первомайская" на 6 этаже. Апартаменты без отделки, после оформления собственности можно делать ремонт. Общая площадь: 72.3 кв.м., жилая: 19.9 кв.м., площадь просторной кухни-гостиной: 22.4 кв.м. Все окна выходят на одну сторону. В апартаментах одна лоджия, один совмещенный санузел. Высота потолков 2.7 м. Дом монолитный, двухподъездный, высотой 11 этажей. Апартаменты находятся в 1-й секции в корпусе 2. На этаже 4 квартиры. В подъезде 2 пассажирских лифта. В настоящее время строительство окончено, дом сдан во 2 квартале 2021 года. Оформление сделки по договору купли-продажи. "1А Первомайская" — новый проект Брусники в самом центре Тюмени на пересечении главных улиц: Первомайской, Советской и Сакко. Квартал состоит из двух зданий с жилыми апартаментами и офисной галереи, которые связаны единым общественным пространством.. Всего в квартале расположено 70 квартир. Гибкие планировки создают особенный сценарий проживания в каждой из них. Можно спланировать пространство так, как хочется. Площадь квартиры позволяет расширить традиционный набор функций — кухня, спальня, гостиная, и разместить до 20 видов помещений, например, мастер-спальня, ванная-спа, домашний офис, кухня-столовая с камином, комната для чтения и другие.. Твой личный центр Центр города — это всегда сложное комплексное явление, соединяющее экономическое, культурное, историческое, социальное и психологическое пространства. Центр — место, с которым в первую очередь ассоциируется город. Это его квинтэссенция. Здесь сосредоточены знаковая архитектура, смыслы, деловая и творческая энергия. Здесь находятся лучшие магазины, театры, парки, школы, музеи, офисы крупных компаний и знаковые девелоперские проекты, становящиеся новым и городскими ориентирами. Быть в центре — естественное желание современного человека. "1А Первомайская" — классический способ это желание реализовать. Новая городская архитектура "1А Первомайская" — ансамбль из двух жилых зданий и офисной галереи. Под ними — двухуровневый паркинг для резидентов, сотрудников офисов и гостей. Мы хотели создать проект, который бы органично встроился в окружение и соответствовал запросам горожан к центру. Поэтому утвердили сомасштабную человеку высоту в 7-9 этажей и спреоктировали внутри квартала пешеходную аллея, которая связывает дома с контекстом и делает квартал проницаемой. В качестве основного материала фасадах зданий мы выбрали натуральный камень лабрадорит. Он выглядит благородно и сдержанно. Эстетику проекта дополняет регулярная, правильная сетка окон. Такая архитектура вне времени. #zmSw99



















































































