


175 916 ₽/м²
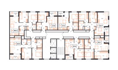
Квартира с кухней-гостиной и одной спальней в Октябрьском на Туре. Особенности планировки: балкон, вид во двор, предчистовая отделка. квартиры в нашей базе: ОКТ-10-2-2.7.6. Район Проект расположен на берегу реки, в одном из самых живописных и экологичных районов Тюмени. За последние годы облик района изменился. По соседству с индивидуальной застройкой выросли многоквартирные дома. При проектировании "Октябрьского на Туре" нашей приоритетной задачей стало сохранение природного ландшафта: мы постарались деликатно вписать в него современную архитектуру. Квартал удачно расположен с точки зрения дорожной инфраструктуры. На автомобиле путь до центра города составит 15 минут. Добраться до набережной и главных тюменских достопримечательностей можно и на общественном транспорте. В пешей доступности находится автобусная остановка. Проект По мастер-плану здесь будет восемь домов. Ядро застройки составляют замкнутые кварталы переменной этажности. Их высотность понижается по мере приближения к реке. На углах участка мы разместили башни-доминанты. Одной из достопримечательностей квартала станет парк на Туре — здесь появится зеленая зона протяженностью около 6 километров для пеших и велопрогулок. Смысловая ось квартала — широкая главная улица с высаженными вдоль неё высокими деревьями. Они создают тень и работают как шумо- и пылезащитные экраны. Это место сосредоточения основных пешеходных и транспортных потоков, на сторону которых мы ориентировали большинство коммерческих помещений. Отсюда жители могут свернуть на тихие соседские улицы и попасть на внутриквартальную площадь — ещё одну точку притяжения. #2mdv78












































































































