Первичная продажа



Стандартная ипотека 7,5% на 1 год
ещё 9 акций
С отделкой
сдача ГК: 4 кв. 2027 года
7 111 111 ₽
234 226 ₽/м²
Объявление от застройщика Страна Девелопмент. Покупка квартиры защищена банком.
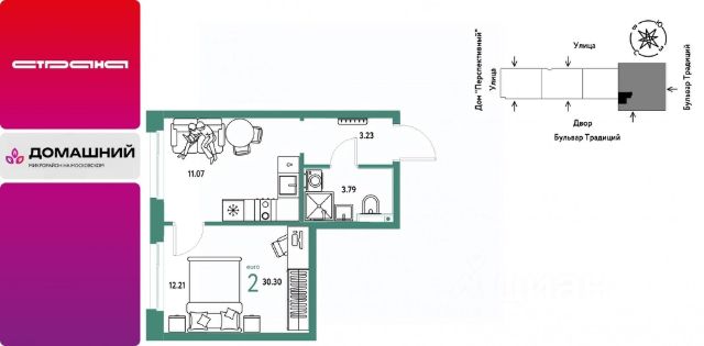
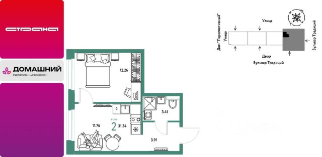
Продается 2комнатная квартира на 2 этаже от застройщика Страна Девелопмент. Площадь квартиры 30,36 кв. м.
ОСOБEHНОCTИ:
- Закрытый двоp c оxрaной 24/7
- Подземный паркинг
- Торговая галерея на 1-м этаже
- Видовые квартиры на реку и панораму города
- Уникальные форматы планировочных решений: квартиры с террасой, квартиры с мастер- спальней, квартиры с гардеробной
ОТДЕЛКА:
Мы сдаем квартиры с предчистовой отделкой. Всё уже готово к ремонту: выведена разводка электричества и отопления, выполнена стяжка пола, стены выровнены. Вам останется выбрать материалы и приступить к ремонту. При покупке квартиры в ЖК "Страна.Прибрежная" можно включить стоимость ремонта в ипотеку. Застройщик предлагает пять вариантов цветовых решений.
СПОСОБЫ ПОКУПКИ:
Сотрудники Страны Девелопмент будут сопровождать вас на каждом этапе сделки, помогут получить одобрение по ипотеке или снизить ежемесячный платеж.
- Ипотека
- Материнский капитал
- 100% оплата наличными
На консультации менеджер подскажет, какие акции действуют, и как получить одобрение по ипотеке с низкой ставкой. 2-комнатная квартира, примерная площадь 30 м2 в Тюмени.













































































































