


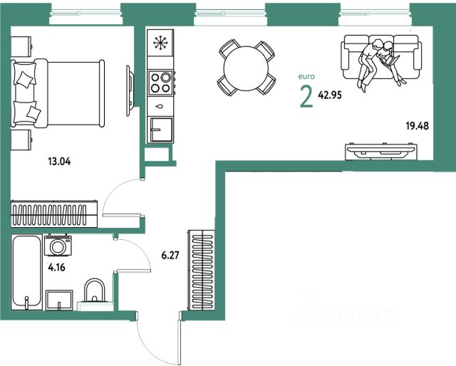
117 507 ₽/м²
ЖК DOK в Тюмени Жилой комплекс на берегу Туры с живописным видом на реку, Мост влюбленных и исторический центр. Уникальный проект Это первый в Тюмени проект с принципиально новой организацией общественных зон. Три лепестка здания сходятся в большое пространство лифтового холла-вестибюля с зоной рецепции. По желанию жителей, здесь можно организовать консьерж-службу. Расположение ЖК DOK строится в районе ДОКа, на месте бывшего завода "Красный Октябрь". Вид из окон Дома стоят на высоком берегу Туры, на первой линии у воды. В этом месте река делает резкий поворот, образуя живописный изгиб. С территории комплекса одинаково хорошо просматриваются как панорама реки, так и нагорная часть исторического центра, Мост Влюбленных и Набережная.




















































































































