Первичная продажа



Комбо-предложение
ещё 9 акций
С отделкой
сдача ГК: 3 кв. 2026 года
10 450 000 ₽
170 473 ₽/м²
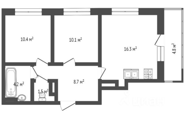
2-комн. квартира от застройщика с предчистовой отделкой в ЖК "Айвазовский" на 16 этаже. Общая площадь: 61.3 кв.м., жилая: 21.3 кв.м., площадь просторной кухни-столовой: 17.1 кв.м. Комнаты изолированные, все окна выходят на одну сторону. В квартире одна лоджия, два совмещенных санузла. Высота потолков 2.72 м.
Дом монолитный, многоподъездный, переменной этажности, от 9 до 24 этажей. Квартира находится во 2-й секции высотой 24 этажа в корпусе ГП-7. На этаже 7 квартир. В подъезде 1 пассажирский и 2 грузовых лифта. Окончание строительства - 3 квартал 2026 года. Оформление сделки по договору долевого участия.
Теперь, чтобы почувствовать атмосферу города, вам не нужно ехать в центр. Новый центр Тюмени — уже здесь. Айвазовский - район комфорт-класса, открывающий перед вами впечатляющие перспективы: дома с авторской архитектурой, насыщенная жилая среда и будущая городская набережная, которая станет точкой притяжения всего района. Всё, что воплощает собой представление о статусе, комфорте и вкусе, прямо вокруг вас. Ключевое преимущество локации — виды из окон на реку Туру и озеро Круглое. Часть домов уже заселена, срок сдачи остальных — III квартал 2026 года.
Главное отличие Айвазовского:
- Уникальная архитектура и насыщенная внутренняя инфраструктура
- Находится в пятом Заречном — в новом комфортном районе
- Закрытая территория, концептуальное благоустройство с хвойными и лиственными деревьями
- Освещение, которое украшает и преображает среду
- Разновозрастные игровые площадки
- Детский сад, школа искусств и соседский центр прямо внутри района
- Близкое расположение Гагаринского парка
Для автомобилей предусмотрены 3 вида паркингов (наземные крытый и открытый, подземный), а также кладовые для сезонных и крупногабаритных вещей.
В каждой квартире — система "умный дом" (видеоэкран, датчики протечки, охранная сигнализация, электронные замки и звонок с камерой). В холлах высокие потолки - от 4,1 до 4,5 м., музыка, дизайнерская мебель, грузовые и пассажирские лифты, колясочные. На первых этажах — кофейни, супермаркеты, аптеки, салоны красоты и т.д.
Айвазовский — настоящий сад, это проект с самым большим разнообразием растений во всей линейке ЭНКО. Во дворах 58 видов растений и все посадки полностью отвечают сибирскому климату.
Аккредитация в банках: ОАО "Альфа-Банк", ПАО "Газпромбанк", "Сбербанк России", ПАО Банк "ВТБ", ПАО Банк "ФК Открытие" и других.



















































































































