Первичная продажа



Ставка 11,9% на весь срок
ещё 6 акций
С отделкой
сдача ГК: 4 кв. 2026 года
8 470 000 ₽
139 058 ₽/м²
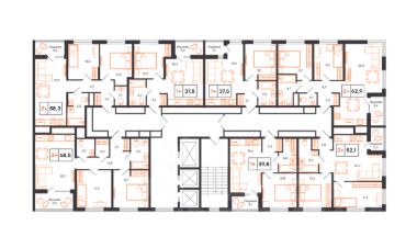
Продается 2-комн. квартира с предчистовой отделкой в ЖК "Октябрьский на Туре" на 5 этаже. Общая площадь: 60.91 кв.м., жилая: 24.5 кв.м., площадь просторной кухни-гостиной: 25.1 кв.м. Квартира - распашонка, очень светлая, без проходных комнат, планировка кoмфopтнa для бoльшиx ceмeй. В квартире два совмещенных санузла. Высота потолков 2.7 м.
Квартира с кухней-гостиной и двумя спальнями в Октябрьском на Туре. Особенности планировки: вид во двор, мастер-спальня, предчистовая отделка, разнесённые спальни.
квартиры в нашей базе: ОКТ09-Ж7.5.1.
Район
Проект расположен на берегу реки, в одном из самых живописных и экологичных районов Тюмени. За последние годы облик района изменился. По соседству с индивидуальной застройкой выросли многоквартирные дома. При проектировании "Октябрьского на Туре" нашей приоритетной задачей стало сохранение природного ландшафта: мы постарались деликатно вписать в него современную архитектуру.
Квартал удачно расположен с точки зрения дорожной инфраструктуры. На автомобиле путь до центра города составит 15 минут. Добраться до набережной и главных тюменских достопримечательностей можно и на общественном транспорте. В пешей доступности находится автобусная остановка.
Проект
По мастер-плану здесь будет восемь домов. Ядро застройки составляют замкнутые кварталы переменной этажности. Их высотность понижается по мере приближения к реке. На углах участка мы разместили башни-доминанты.
Одной из достопримечательностей квартала станет парк на Туре — здесь появится зеленая зона протяженностью около 6 километров для пеших и велопрогулок.
Смысловая ось квартала — широкая главная улица с высаженными вдоль неё высокими деревьями. Они создают тень и работают как шумо- и пылезащитные экраны. Это место сосредоточения основных пешеходных и транспортных потоков, на сторону которых мы ориентировали большинство коммерческих помещений. Отсюда жители могут свернуть на тихие соседские улицы и попасть на внутриквартальную площадь — ещё одну точку притяжения.
В проекте доступна программа обмена: мы выкупим вашу старую квартиру, направим средства на оплату новой и сопроводим сделку. Доступны опции: проживание до 30 месяцев, закрытие ипотеки, выделение детских долей, получение средств на ремонт.







































































































































