


124 490 ₽/м²
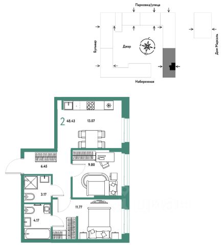
Квартира в счёт первоначального взноса по программе обмена. Информация по телефону, мы вам все подробно расскажем! Продается двухкомнатная квартира с предчистовой отделкой в ЖК "Зарека" на 9 этаже. Общая площадь: 73.58 кв.м., жилая: 27 кв.м., площадь просторной кухни-гостиной: 24 кв.м. Угловая квартира, идеально подойдет любителям тишины и панорамных видов. В квартире один балкон, два совмещенных санузла. Высота потолков 2.7 м. Дом монолитный, многоподъездный, переменной этажности, от 6 до 16 этажей. Квартира находится в 1-й секции высотой 16 этажей в корпусе 5-2. На этаже 8 квартир. В подъезде 1 пассажирский и 1 грузовой лифт. Окончание строительства - 4 квартал 2026 года. Оформление сделки по договору долевого участия. Квартира с кухней-гостиной и двумя спальнями в жилом районе "Зарека". Особенности планировки: гардеробная, разнесённые спальни, предчистовая отделка, мастер-спальня, балкон. квартиры в нашей базе: ЗРК05.2-Ж1.9.2. Проект На планировочную структуру "Зареки" повлияла близость к автомобильному мосту Челюскинцев. Мы расположили жилые здания так, чтобы они постепенно удалялись от проезжей части. Приём напоминает лесенку: чем сильнее мост возвышается над участком застройки, тем дальше по отношению к нему стоят дома. Этот ступенчатый сдвиг позволил нам сформировать буфер между кварталами и оживлённой магистралью. Мы намерены высадить здесь высокие деревья и создать дополнительную защиту от дорожных шума и пыли. В границах нашего участка мы намерены разместить школу и два встроенных детских сада на 135 и 150 мест. Общественные пространства С севера на юг территорию будет пронизывать пешеходный бульвар. Мы мыслим это общественное пространство как главный центр притяжения. На нём будут сосредоточены основные детские игровые и спортивные зоны, места для встреч и спокойного отдыха. Он также сыграет роль мостика, ведущего к другим нашим проектам — "Европейскому кварталу" и "Дому у озера". Одна из базовых идей мастер-плана касается береговой линии. Сегодня озеленение этой территории носит стихииныи характер, а прямому доступу к Туре препятствует дамба. Мы хотим благоустроить пространства у воды и открыть их для людей. Архитекторы спроектировали систему многоярусных троп и спусков к реке, смотровые площадки и места для активного отдыха и пикников. #2s1ou2


































































































































