Первичная продажа



Ставка 7% на 7 лет для всех
ещё 6 акций
С отделкой
сдача ГК: 3 кв. 2026 года
15 360 000 ₽
125 388 ₽/м²
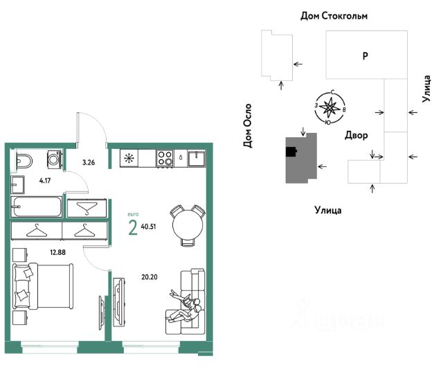
Продается 2-комн. квартира от застройщика с предчистовой отделкой в ЖК "Зарека" на 8 этаже. Общая площадь: 122.5 кв.м. Высота потолков 2.7 м.
Квартира с кухней-гостиной и двумя спальнями в жилом районе "Зарека". Особенности планировки: летняя кухня на крыше, мастер-спальня, панорамное остекление, постирочная, предчистовая отделка, разнесённые спальни, терраса, терраса на крыше, тёплая лоджия.
квартиры в нашей базе: Панама01-01-5-5.8.3.
Проект
На планировочную структуру "Зареки" повлияла близость к автомобильному мосту Челюскинцев. Мы расположили жилые здания так, чтобы они постепенно удалялись от проезжей части. Приём напоминает лесенку: чем сильнее мост возвышается над участком застройки, тем дальше по отношению к нему стоят дома. Этот ступенчатый сдвиг позволил нам сформировать буфер между кварталами и оживлённой магистралью. Мы намерены высадить здесь высокие деревья и создать дополнительную защиту от дорожных шума и пыли.
В границах нашего участка мы намерены разместить школу и два встроенных детских сада на 135 и 150 мест.
Общественные пространства
С севера на юг территорию будет пронизывать пешеходный бульвар. Мы мыслим это общественное пространство как главный центр притяжения. На нём будут сосредоточены основные детские игровые и спортивные зоны, места для встреч и спокойного отдыха. Он также сыграет роль мостика, ведущего к другим нашим проектам — "Европейскому кварталу" и "Дому у озера".
Одна из базовых идей мастер-плана касается береговой линии. Сегодня озеленение этой территории носит стихииныи характер, а прямому доступу к Туре препятствует дамба. Мы хотим благоустроить пространства у воды и открыть их для людей. Архитекторы спроектировали систему многоярусных троп и спусков к реке, смотровые площадки и места для активного отдыха и пикников.
В проекте доступна программа обмена: мы выкупим вашу старую квартиру, направим средства на оплату новой и сопроводим сделку. Доступны опции: проживание до 30 месяцев, закрытие ипотеки, выделение детских долей, получение средств на ремонт.


















































































































































