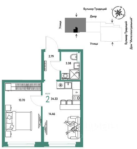
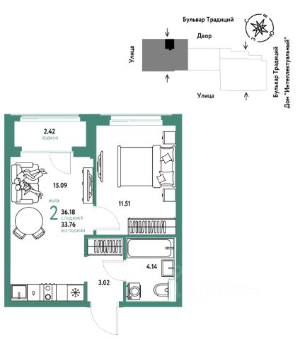
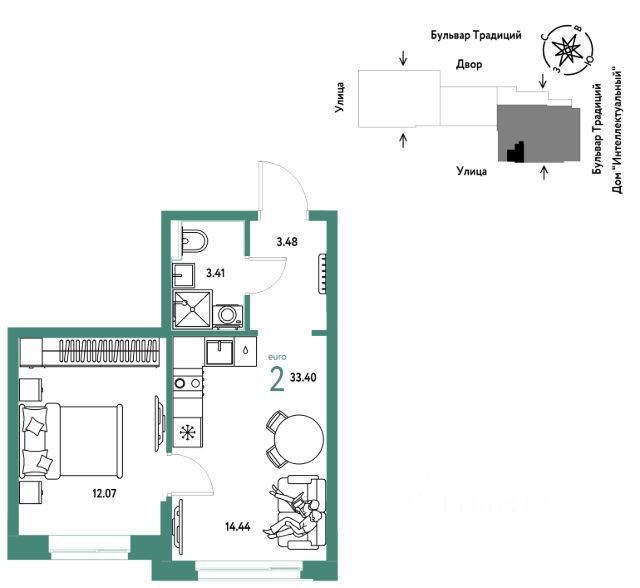
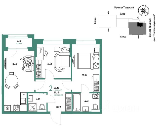
157 774 ₽/м²
Новая квартира в ЖК "Домашний" напрямую от федеральной группы компаний "Страна Девелопмент". Финансовый партнер — банк "ДОМ.РФ". Продается 2комнатная квартира на 3 этаже от застройщика Страна Девелопмент. Площадь квартиры 43,17 кв. м. Стоимость указана без учета акций. Жилой комплекс "Домашний" это первый цифровой район в Сибири, где жители заходят в парадные по Face ID, автомобили заезжают в паркинг по сканированию номера, а лифт автоматически спускается на первый этаж при открытии домофона. Даже во дворах — USB-розетки и беседки с подогревом. ПРЕИМУЩЕСТВА: -Школа, зеленый сквер и пешеходный бульвар прямо внутри квартала -Закрытые дворы у каждого дома для активного и спокойного отдыха -Охрана, видеонаблюдение 24/7 и доступ к камерам в мобильном приложении -Сквозные парадные с прозрачными входными группами, колясочными и велосипедными -Паркинг с въездом по считыванию номеров, системой контроля выбросов CO2, тележками для покупок и велопарковкой -Торговая галерея на первом этаже дома ОТДЕЛКА Квартиры сдаются с предчистовой отделкой: произведена разводка электричества и отопления, выполнена стяжка пола, стены выровнены "под маяк", установлены розетки, выключатели и радиаторы. ДИЗАЙНЕРСКАЯ ОТДЕЛКА При покупке квартиры в ЖК "Домашний" можно включить стоимость ремонта в ипотеку. Пять вариантов на выбор: Хлопковая нить, Серый шторм, Белый камень, Шалфей, Голубой вереск. СПОСОБЫ ПОКУПКИ: - ипотека - материнский капитал -100% оплата наличными Сотрудники "Страна Девелопмент" будут сопровождать вас на каждом этапе сделки, помогут получить одобрение по ипотеке или снизить ежемесячный платеж. Продам 2-комнатную квартиру на улице Ставропольская в городе Тюмень.







































































































