


118 706 ₽/м²
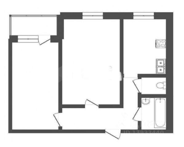
Квартира располагается в ГК "Чистые Пруды" от "Паритет девелопмент". Это флагманский проект компании в Тюмени. Расположение вдали от шумных улиц и оживленного центра создает ощущение жизни на природе и окружает тишиной и спокойствием. Есть вся необходимая социальная и коммерческая инфраструктура: магазины и сфера услуг на первых этажах. Школы, сады, поликлиника, парки в шаговой доступности. Квартал строится в районе Новой Лесобазы. Рядом выезд на объездную, что существенно экономит время. Поездка до центра города на автомобиле занимает 15-20 минут. Городские кварталы "Чистые Пруды" сформирован из домов переменной этажности и многоуровневых паркингов. Ввод 1 очереди строительства запланирован на II кв. 2028 года. Всё благоустройство квартала представлено двумя функциональными зонами: приватная внутри дворовая и общественная. Каждый закрытый двор имеет выход на единую променадную зону - бульвар. Концепция благоустройства основана на принципе модульности, что формирует основную идею приватности. Приватность проекта подчеркивает его особенный климат внутри. Модульное благоустройство позволит максимально эффективно использовать пространство двора и удовлетворить потребности различных категорий жителей. В квартирах базово выполнена улучшенная черновая отделка, которая включает в себя: выровненные стены, стяжка пола с шумоизоляцией, горизонтальная разводка отопления, установлены счетчики с телеметрией, окна с 5-камерным профилем и надежные входные двери. При желании можно добавить ремонт от застройщика и включить его в стоимость ипотеки, что позволит сэкономить на стройматериалах и переехать сразу после получения ключей. Характеристики квартиры: этаж - 2 количество комнат - 3 номер помещения - 280 площадь квартиры - 64,9 кв.мГармоничные пропорции и большие окна наполняют пространство светом, создавая уютную атмосферу. Умное зонирование позволяет удобно организовать как рабочую, так и жилую зоны, что особенно важно для современных жителей. Санузел спроектирован с учетом всех потребностей: здесь есть ванна и место для стиральной машины. Каждый метр квартиры используется с максимальной эффективностью, что делает эту планировку отличным выбором для тех, кто ценит комфорт и удобство. Продается 2-комнатная квартира в микрорайоне Казачьи Луга в городе Тюмень.
























































































































