


208 720 ₽/м²
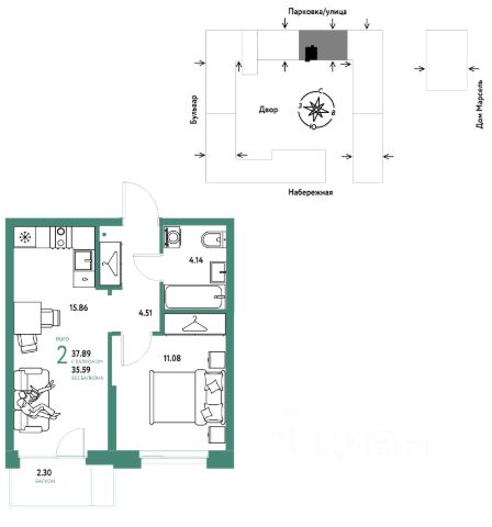
Продается 2комнатная квартира в новом ЖК "Европейский берег". Общая площадь квартиры 62,87 кв. м. Сдача — в 4 квартале 2025 года. Европейский берег 2.0. — это продолжение легендарного жилого комплекса Европейский берег. Он включает все, что нужно для жизни, и даже больше. Этот квартал для тех, кто не готов тратить время на ненужное, жертвовать одним ради другого. Для тех, кто хочет получить все и сразу. Именно поэтому генеральная идея проекта — жилой квартал все включено. Все преимущества включены. Никаких исключений. Дом Монте-Карло - это олицетворение роскоши средиземноморского курорта. Расположен на первой линии, с выходом на набережную. Мы спроектировали квартиры с лоджиями, французскими балконами, с террасами и панорамными окнами, чтобы жители могли любоваться видом на главную реку города. ОТДЕЛКА Квартиры сдаются с предчистовой отделкой. Все грязные работы выполнены: произведена разводка электричества и отопления; выполнена стяжка пола; стены выровнены "под маяк". В квартире установлены розетки, выключатели и радиаторы. На входе — надежная стальная дверь. Вам остается только выбрать материалы и начать ремонт Доступна опция "Ремонт от застройщика". Стоимость можно включить в ипотеку. Вы можете заказать один из трех цветовых вариантов: светлый, натуральный или тёмный. В квартире внедрена технология "Умный дом". КУХНЯ С ТЕХНИКОЙ Теперь дополнительно к ремонту можно заказать кухню со встроенной техникой. Эргономику и функциональное наполнение разработали под каждую планировку. ПОЛНАЯ МЕБЛИРОВКА Больше не нужно тратить время даже на подбор, доставку и сборку мебели.Вы можете включить в стоимость квартиры с ремонтом полную меблировку. Что входит в меблировку? - Кухня с техникой и сантехникой - Диван - Кровать - Шкаф в спальне - Шкаф в прихожей Цены на квартиры указаны без учета скидок. На консультации менеджер подскажет, какие акции действуют, и как получить одобрение по ипотеке с низкой ставкой. Более подробная информация по телефону. ООО Специализированный застройщик "К2". Проектные декларации на сайте наш.дом.рф.



























































































































































