


159 953 ₽/м²
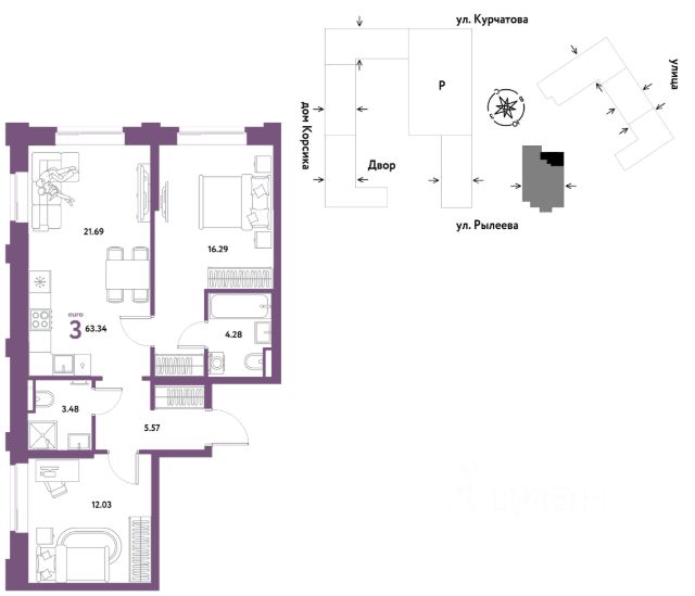
Объявление от застройщика Страна Девелопмент. Покупка квартиры защищена банком. Продается 3комнатная квартира на 9 этаже от застройщика Страна Девелопмент. Площадь квартиры 64,88 кв. м. Квартиры сдаются с предчистовой отделкой. Доступна опция "Ремонт от застройщика". В квартире внедрена технология "Умный дом". Срок сдачи 3 квартал 2025. Более подробная информация по телефону. О ПРОЕКТЕ Жилой комплекс "Авторский" — это 4 дома переменной этажности. Для них выбраны лаконичные цвета: графитовый, белый и молочно-коричневый. Динамику фасадов рисуют окна разной ширины, декоративные корзины для кондиционеров и открытые балконы разных размеров. Последние — архитектурная изюминка квартала. Отдыхайте больше на тематическом бульваре. Прямо в комплексе есть тематический бульвар для прогулок или пикников, встреч с друзьями или занятий спортом. ОТДЕЛКА Квартиры сдаются с предчистовой отделкой. Все грязные работы выполнены: произведена разводка электричества и отопления; выполнена стяжка пола; стены выровнены "под маяк". В квартире установлены розетки, выключатели и радиаторы. На входе — надежная стальная дверь. Вам остается только выбрать материалы и начать ремонт. В базовую отделку квартиры входит система "Умный дом". Вы сможете дистанционно контролировать все процессы в ней. Система будет предупреждать вас обо всех изменениях в доме с помощью мобильного приложения. РЕМОНТ Доступна опция "Ремонт от застройщика". Стоимость можно включить в ипотеку. Вы можете заказать один из трех цветовых вариантов: светлый, натуральный или тёмный. В квартире внедрена технология "Умный дом". На консультации менеджер подскажет, какие акции действуют, и как получить одобрение по ипотеке с низкой ставкой. Более подробная информация по телефону. ООО СЗ "Зеленый мыс". Проектные декларации на сайте наш.дом.рф.

























































































