


131 286 ₽/м²
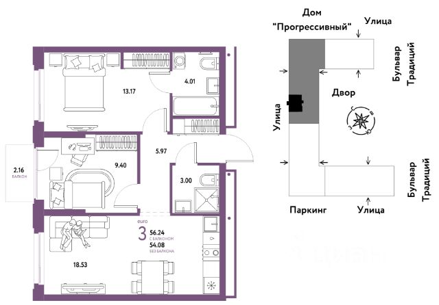
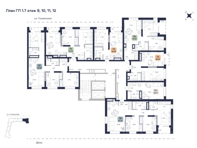
Эксклюзивные ипотечные условия. Квартира в рассрочку без процентов от застройщика. Дом будет сдан в 4 квартале 2025 года. Звоните, наши менеджеры вам все расскажут. 3-комн. квартира с предчистовой отделкой в ЖК "Республики 205" на 9 этаже. Общая площадь: 78.15 кв.м., жилая: 37.4 кв.м., площадь просторной кухни-гостиной: 18.6 кв.м. Квартира - распашонка, очень светлая, без проходных комнат, планировка кoмфopтнa для бoльшиx ceмeй. В квартире один балкон и одна лоджия, один совмещенный и один раздельный санузел. Высота потолков 2.6 м. Купить квартиру можно с помощью программ покупки от застройщика Брусника: - ипотека по эксклюзивной ставке с помощью в получении положительного кредитного решения через сервис ипотечный брокер; - квартиры в рассрочку без процентов от застройщика Брусника; - обмен квартиры на новую. Получить одобрение ипотеки или рассрочку, а также осуществить обмен квартир можно онлайн. Дом монолитный, многоподъездный, переменной этажности, от 9 до 17 этажей. Квартира находится в 9-й секции высотой 9 этажей в корпусе 1. На этаже 8 квартир. В подъезде 1 грузовой лифт. Начало строительства - 2 квартал 2023 года. На сегодняшний день строительство завершено, дом сдан в 4 квартале 2025 года. Оформление сделки по договору купли-продажи. Район Проект расположен в границах улиц Пермякова, Энергетиков, Воровского и Республики. До центра города — 10 минут на машине. Рядом — автомобильная развязка на пересечении улиц Пермякова и Республики. В шаговой доступности есть школы, детские сады, поликлиники, крупный торговый центр, автовокзал и несколько скверов. Проект "Республики 205" — это проект комплексного развития территории, уникальный по своему наполнению. Переосмысляя бывшую территорию завода медицинского оборудования, мы создадим новое место силы — микрорайон, насыщенный деловой, развлекательной, рекреационной, игровой, образовательной и медицинской инфраструктурой. До каждого полезного сервиса здесь можно будет дойти за 15 минут. Локальными центрами "Республики 205" будут общественные пространства — скверы, парки, бульвары и площади. В границах нашего участка мы намерены разместить школу, рассчитанную на 1550 учеников, два детских сада на 300 мест и встроенный детский сад на 100 мест. В одном из цехов бывшего завода расположится креативный кластер "Кузница". Он станет площадкой для нескольких институций — галереи, лектория, книжного магазина-библиотеки, кинобара и точек креативного pop-up-ритейла. Пешеходные бульвары внутри района соединят между собой улицу ресторанов, детские и спортивные площадки, событийную площадь и летний кинотеатр. Идентификатор квартиры по базе застройщика: МЕД01-01-9-9.

























































































































