128 994 ₽/м²
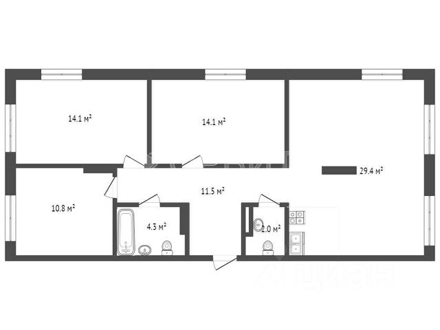
Срочно продам просторную квартиру формата 3+ в новом жилом комплексе Симпл по ул. Республики, 204 к.10. Квартира расположена на среднем этаже, хорошее естественное освещение, окна выходят на восток и запад. Комнаты изолированные, просторная кухня-гостиная, установлены сплит-системы, имеется две гардеробные, санузел с ванной, санузел с душевой, дополнительно установлен водонагреватель. В квартире выполнена свежая отделка с применением качественных материалов, осталось установить межкомнатные двери на Ваш вкус. Придомовая территория охраняется, обустроена, озеленена, имеются детские площадки, качели, места для отдыха, спортивная площадка, установлена система видеонаблюдения в лифтах, холлах, во дворе и по периметру дома. В жилом комплексе есть вся необходимая социальная инфраструктура, супермаркеты, аптеки, бытовые услуги, пункты выдачи заказов и т.д. В шаговой доступности остановка, школа, детский сад, удобная транспортная развязка без пробок в любой район Тюмени. Звоните, организую просмотр квартиры в удобное для Вас время! МЫ ГАРАНТИРУЕМ ФИНАНСОВУЮ БЕЗОПАСНОСТЬ ДЛЯ НАШИХ КЛИЕНТОВ. Код пользователя: 184152 Номер в базе: 8908593









































































