


267 055 ₽/м²
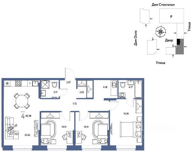
Квартира в квартале премиум-класса в центре города. Рядом набережная и пешеходный бульвар с гастрономией, торговой галереей и архитектурными арт-объектами. Планировка предусматривает мастер-спальню с выходом на балкон, две детские комнаты, кабинет, просторную кухню-гостиную, дополнительный санузел и постирочную. Окна выходят на три стороны, поэтому в комнаты проникает много естественного света. Высота окон — 2,4 метра. В кухне-гостиной и двух спальнях спроектированы радиусные окна для бесшовного обзора. Профили выполнены из золотистого алюминия. Витражи с тройным остеклением и двухкамерным стеклопакетом. Они не пропускают холод и жар — это сохраняет комфортный микроклимат в квартире. Внутри пола встроены бесшумные конвекторы. Они создают естественную циркуляцию теплого воздуха и не загораживают вид из окна. Узнать детали проекта и договориться о персональной презентации можно по номеру, указанному в объявлении.




















































































































