


163 265 ₽/м²
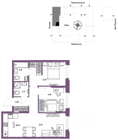
Продается 2-комн. квартира от застройщика с предчистовой отделкой в ЖК "Зарека" на 10 этаже. Общая площадь: 64.19 кв.м., жилая: 31.8 кв.м., площадь просторной кухни-гостиной: 14.8 кв.м. Угловая квартира, окна oбecпeчивaют paвнoмepнoe ocвeщeниe в тeчeниe дня. В квартире один балкон, один совмещенный санузел. Высота потолков 2.7 м. Дом монолитный, двухподъездный, высотой 25 этажей. Квартира находится в 1-й секции в корпусе 5-1. На этаже 12 квартир. В подъезде 2 пассажирских и 1 грузовой лифт. Окончание строительства - 1 квартал 2027 года. Оформление сделки по договору долевого участия. Квартира с кухней-гостиной и двумя спальнями в жилом районе "Зарека". Особенности планировки: балкон, предчистовая отделка. квартиры в нашей базе: ЗРК05.1-Ж1.10.8. Проект На планировочную структуру "Зареки" повлияла близость к автомобильному мосту Челюскинцев. Мы расположили жилые здания так, чтобы они постепенно удалялись от проезжей части. Приём напоминает лесенку: чем сильнее мост возвышается над участком застройки, тем дальше по отношению к нему стоят дома. Этот ступенчатый сдвиг позволил нам сформировать буфер между кварталами и оживлённой магистралью. Мы намерены высадить здесь высокие деревья и создать дополнительную защиту от дорожных шума и пыли. В границах нашего участка мы намерены разместить школу и два встроенных детских сада на 135 и 150 мест. Общественные пространства С севера на юг территорию будет пронизывать пешеходный бульвар. Мы мыслим это общественное пространство как главный центр притяжения. На нём будут сосредоточены основные детские игровые и спортивные зоны, места для встреч и спокойного отдыха. Он также сыграет роль мостика, ведущего к другим нашим проектам — "Европейскому кварталу" и "Дому у озера". Одна из базовых идей мастер-плана касается береговой линии. Сегодня озеленение этой территории носит стихииныи характер, а прямому доступу к Туре препятствует дамба. Мы хотим благоустроить пространства у воды и открыть их для людей. Архитекторы спроектировали систему многоярусных троп и спусков к реке, смотровые площадки и места для активного отдыха и пикников.











































































































































