


150 000 ₽/м²
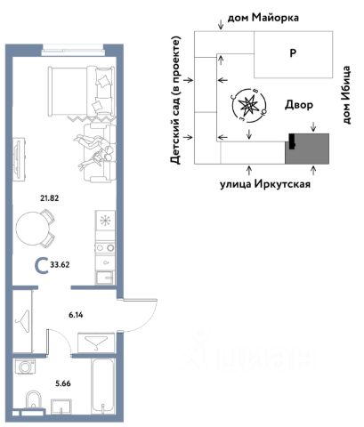
Уютная студия с эргономичной планировкой, сдается в предчистовой отделке в микрорайоне Чемпионский. Чемпионский микрорайон комплексного развития территории для комфортной и активной жизни. Монолитные дома переменной этажности от 12 до 24 этажей где каждая квартира наполнена светом, а из окна открываются завораживающие виды на заливные луга или на набережную реки Тура. Дом разделен на 3 секции, в которых предусмотрено от 2 до 3 грузопассажирских лифта. Окончание строительства - 4 квартал 2025 года. Архитектура Фасады выполнены в мягких, пастельных оттенках, подчеркивающих гармонию с окружающей средой. Для отделки использовали комбинацию гладких и фактурных штукатурок. Отдельного внимания заслуживают летние пространства: просторные балконы и уютные террасы украшают внешний облик зданий, придавая каждой постройке неповторимый характер. Подсветка фасада создает уютную атмосферу во время вечернего променада. Благоустройство Благоустройство выполнено по ландшафтному дизайну. Предусмотрено разноуровневое озеленение территории. Используется посадочный материал из местных питомников, адаптированный под климатические условия. По периметру здания благоустройство выполнено на уровне земли, имеются проезды и стоянки для автомобилей, пешеходные и велосипедные дорожки, зоны для отдыха. Безбарьерный вход в дизайнерские парадные, с теплым тамбуром и мягкими зонами ожидания. В закрытом дворе размещены детские спортивные площадки, скейтпарк, баскетбольная площадка, а также зоны отдыха взрослого населения. Здесь вы ощущаете гармонию с окружающим миром, наслаждаясь красотой природы в пределах города. Инфраструктура В шаговой доступности от жилого комплекса находятся: продуктовые магазины, пункты выдачи интернет-заказов, банкоматы, средняя общеобразовательная школа 38, общественный парк, остановка общественного транспорта.




























































































