


214 679 ₽/м²
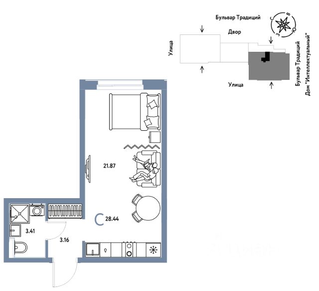
Студия площадью 21,8 м² Студия с увеличенным окном — оно шире на 16%, чтобы впустить в квартиру больше света. Для одежды в прихожей ниша под шкафы. В квартире предчистовая отделка: стены оштукатурены и выровнены по общему уровню, на полу слой цементно-песчаного раствора с дополнительным гидроизоляционным слоем в ванной. Проведена электрика и готовы розетки с выключателями. А ещё установлены сейф-двери и счётчики с телеметрией. Квартал построен на улице Республики. Сдача в 2026 году. В районе развитая инфраструктура. Вокруг много школ и детских садов, есть качественные клиники и большой парк для прогулок. В закрытых дворах без машин детские и спортивные площадки в окружении озеленения растениями, подходящими по климату. Чтобы было безопасно, по периметру домов работает видеонаблюдение. Для машин продуман многоуровневый паркинг рядом с домом. ЖК построил ПСК Дом девелопмент — застройщик с фокусом на развитие Тюмени с 26-летним опытом на рынке недвижимости. Способы покупки: — ипотечные программы — обмен вашего жилья на новую квартиру — дистанционная покупка — рассрочка Узнать дополнительную информацию и записаться на встречу в офисе продаж можно по номеру, указанному в объявлении.



































































































































