


153 208 ₽/м²
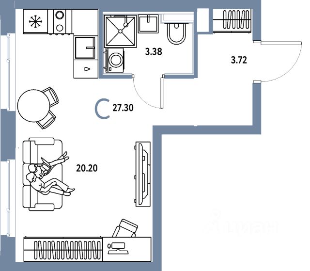
Спешите оформить бронирование по акционной цене, предложение ограничено! Стоимость квартиры указана со скидкой, ваша экономия составит 605,000 руб. Информация по телефону, наши менеджеры вам все расскажут. 1-комн. квартира-студия с предчистовой отделкой в ЖК "Мириады" на 15 этаже. Общая площадь: 35.54 кв.м., площадь гостиной 24.29 кв.м., из которых 5 кв.м. выделено под кухонную зону. Все окна выходят на одну сторону. В квартире одна лоджия, один совмещенный санузел. Высота потолков 2.7 м. Дом монолитный, черырехподъездный, переменной этажности, от 13 до 16 этажей. Квартира находится во 2-й секции высотой 16 этажей в корпусе ГП-72.106. На этаже 5 квартир. В подъезде 1 пассажирский и 1 грузовой лифт. Окончание строительства - 3 квартал 2028 года. Оформление сделки по договору долевого участия. Вселенная бесконечных историй. Ранее невиданный Тюмени масштаб: территория 240 гектаров и 1 650 000 м² застройки. Мириады это город масштабных перемен и больших возможностей. Город зеленых рощ и зеркальных озер. Город для работы, учебы и развлечений. Город для детей и их родителей. Город для всех и каждого. Проект расположен в районе Мыс рядом с ТРЦ "Тюмень Сити Молл" в границах улицы Тимофея Чаркова, Тобольского тракта и объездной дороги. Срок полного освоения территории - до 2034 года.








































































































































