


218 861 ₽/м²
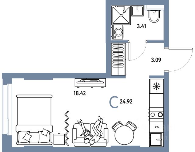
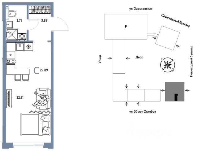
Новая квартира в ЖК "Сердце Сибири" напрямую от федерального застройщика "Страна Девелопмент". Финансовый партнер — банк "ДОМ.РФ". Продается 1комнатная квартира на 5 этаже от застройщика Страна Девелопмент. Площадь квартиры 29,75 кв. м. Жилой комплекс "Сердце Сибири" — это флагманский проект застройщика, в 4-х минутах от центра Тюмени. Философия комплекса воплощена в сочетании сибирских традиций и крепких натуральных материалов. Преимущества • Квартал находится в деловом центре, неподалёку от исторической части Тюмени, в равной удалённости от всех районов. Торговые центры поблизости дают возможность быть в центре событий. В 10 минутах от жилого квартала расположены университеты, школы, детские сады. • В самом центре проходит пешеходный бульвар протяжённостью 640 м. с зелёными насаждениями и арт-объектами. На территории отдыха: праздничная площадь, обзорная площадка, памп-парк и др. • Основная идея благоустройства дворов — создание камерного, уютного пространства. Периметры кварталов образуют закрытые контуры, внутри которых расположились тихие дворы с местами для отдыха, игровыми и релакс-зонами. Благодаря сквозным парадным во дворе нет машин. Защита от посторонних, служба охраны и видеонаблюдение 24/7 — гарантия безопасности вашей семьи. Отделка Квартиры сдаются с предчистовой отделкой: произведена разводка электричества и отопления, выполнена стяжка пола, стены выровнены "под маяк", установлены радиаторы. Дизайнерская отделка При покупке квартиры в ЖК "Сердце Сибири" можно включить стоимость ремонта в ипотеку. 4 стиля отделки ванной и 5 стилей отделки комнат на выбор. Кухня от застройщика Одна из удобных опций от Страны — приобретение кухни в ипотеку при покупке опции "Ремонт". Доступно 4 стиля на выбор: дерево, керамика, мрамор, бетон. Умный дом Система "Умный дом" создаст новый уровень комфорта. Управление светом с помощью голоса, получение последней информации о ситуации в квартире во время отпуска или рабочего дня — и другие преимущества включены в пакет. Способы покупки Сотрудники "Страна Девелопмент" будут сопровождать вас на каждом этапе сделки, помогут получить одобрение по ипотеке или снизить ежемесячный платеж. - ипотека - рассрочка - с использованием материнского капитала -100% оплата наличными





























































































