


116 972 ₽/м²
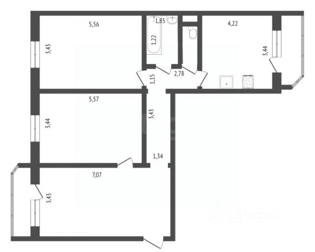
Продается светлая и уютная квартира площадью 43,6 м² с удачной планировкой 1+, расположенная на последнем этаже четырнадцати этажного дома в центре микрорайона. Квартира изначально была однокомнатной, но перепланирована в вариант 1+ с сохранением инженерных сетей, что исключает необходимость узаконивания изменений. Отсутствие соседей сверху обеспечивает дополнительную тишину и приватность. Окна выходят на солнечную сторону, наполняя пространство естественным светом в течение всего дня. В подъезде всего четыре квартиры на площадке, что минимизирует шум и создает комфортную среду для проживания. Дом оснащен двумя лифтами — пассажирским и грузовым, что упрощает перемещение и занос мебели. В квартире выполнен свежий качественный ремонт в нейтральных тонах, подходящий как для жизни, так и для сдачи в аренду. Прежние владельцы не содержали животных, поэтому помещение находится в идеальном состоянии. Микрорайон отличается развитой инфраструктурой: в шаговой доступности расположены детский сад и школа, что делает этот вариант особенно привлекательным для семей с детьми. Благодаря центральному расположению дома, все необходимые объекты — магазины, аптеки, остановки общественного транспорта — находятся в непосредственной близости. Квартира готова к заселению и не требует дополнительных вложений, что позволяет новым владельцам сразу начать комфортную жизнь в обустроенном пространстве. МЫ ГАРАНТИРУЕМ ФИНАНСОВУЮ БЕЗОПАСНОСТЬ ДЛЯ НАШИХ КЛИЕНТОВ. Код пользователя: 185797 Номер в базе: 9549948 Продается квартира квартир в Плеханово в Тюмени.

























































































