


134 696 ₽/м²
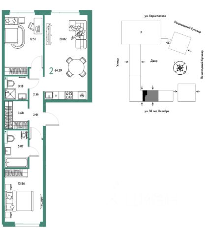
2-комн. квартира от застройщика в ЖК "Мидгард на Уездной" на 11 этаже. Квартира без отделки, новый владелец может сделать ремонт по своему дизайн-проекту. Общая площадь: 62.14 кв.м., жилая: 22.15 кв.м., площадь просторной кухни-столовой: 21.68 кв.м. Комнаты изолированные, все окна выходят на одну сторону. В квартире один балкон и одна лоджия, два совмещенных санузла. Высота потолков 2.72 м. Дом монолитный, черырехподъездный, переменной этажности, от 9 до 15 этажей. Квартира находится в 3-й секции высотой 15 этажей в корпусе ГП-1. На этаже 8 квартир. В подъезде 1 пассажирский и 1 грузовой лифт. Окончание строительства - 3 квартал 2027 года. Оформление сделки по договору долевого участия. "Мидгард на Уездной" - современный проект комфорт-класса, расположенный на первой линии Тюменской слободы, с видом на развязку Московского тракта. Он сочетает в себе современные архитектурные решения и комфортное проживание в гармонии с природой. Жилой комплекс находится в перспективном районе, который отличается транспортной доступностью: до крупных торговых центров "Кристалл" и "Колумб" можно добраться за 10 минут, а до центра города - за 15 минут. В шаговой доступности школы, детские сады, торговые центры и парки, что делает локацию идеальной для комфортной жизни. Проектом предусмотрены дома с дизайнерскими входными зонами и планировочными решения для любого сценария жизни с возможностью включить в ипотечный платеж ремонт, мебель и технику от застройщика. Закрытый двор и собственная аллея вдоль жилого комплекса позволят насладиться тишиной вдали от суеты большого города.































































































































