139 222 ₽/м²
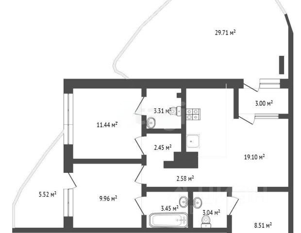
Продам просторную и светлую квартиру формата 2+ с двумя террасами площадью 29 и 5,5 квадратных метров, расположенную в живописном жилом комплексе комфорт класса Гагаринский парк. Эта квартира отличается продуманностью пространства и высоким качеством исполнения даже на этапе черновой отделки, которая выполнена в улучшенном варианте. Здесь предусмотрена просторная кухня-гостиная 19 кв.м. с тёплой лоджий (которую можно объединить с комнатой) и выходом на шикарную террасу 29 кв.м., две спальни, одна из них мастер-спальня со своим санузлом, другая спальня с гардеробной и выходом на другую террасу 5,5 кв. м. В спальне, выходящей на террасу, и кухне-гостиной - большие панорамные окна, наполняющие пространство естественным светом. Особое внимание конечно заслуживает просторная терраса, выходящая прямо на стилобат жилого комплекса, откуда открывается великолепный вид на окружающую природу и зону отдыха. Это идеальное место для утреннего кофе на свежем воздухе или вечерних посиделок с близкими людьми. Шикарные светлые холлы в парадных, просторная колясочная с лапомойкой, гостевой санузел, безбарьерный доступ в подъезд, двор, закрытый от машин, видеонаблюдение на всей территории, бесключевой доступ во двор по Face ID, подземный паркинг, свои кладовки в цоколе, современное дворовое пространство с детскими площадками для разных возрастов и местами отдыха для взрослых с лаундж зонами - это всё, что отличает новый жилой комплекс комфорт класса "Гагаринский парк". ЖК сочетает в себе преимущества городской инфраструктуры и атмосферу загородного спокойствия, предлагая жителям комфортное проживание в зеленой зоне с развитой инфраструктурой. Приобретение квартиры в данном проекте станет прекрасным выбором для тех, кто ценит качество жилья, удобство расположения и возможности комфортного проживания всей семьёй вблизи огромного зелёного парка, который называют "Зелёными лёгкими Тюмени". Продажа от собственника. С агентствами сотрудничаю, Ваша комиссия сверху. Купить 2-комнатную квартиру в ипотеку в микрорайоне Тарманы в городе Тюмень.







































































