106 102 ₽/м²
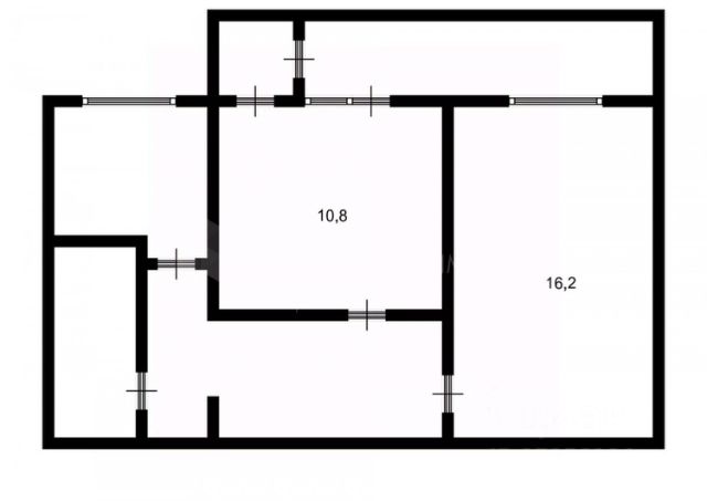
Продаётся 2-к квартира с ремонтом — 47.2 м² Тюмень, ул. Станционная, 16 Цена: 5 110 000 ₽ (108 263 ₽/м²) | Возможен торг | Срочная продажа Параметры: Общая площадь: 47.2 м² Кухня: 5 м² (гарнитур остаётся) 2 изолированные спальни Кирпичный дом (1978 г.) 1/5 этаж | Высота потолков 2.5 м Особенности: • Свежий косметический ремонт • Пластиковые окна + застеклённый балкон • Железная дверь с домофоном • Тёплая квартира (кирпичные стены) Инфраструктура: Восточный парк — 3 мин Магазины: "Магнит", "Пятёрочка" — 2 мин Школа и детсад — 5 мин Остановки: автобусы 8, 25; маршрутки 42, 57, 64 Идеально для: • Пенсионеров — низкий этаж • Молодой семьи — развитая инфраструктура • Инвестора — хорошая транспортная доступность Условия: 1 собственник (взрослый) Под семейную ипотеку Документы готовы Показы в удобное время Звоните с 9:00 до 20:00 P.S. Тихий зелёный район с детской площадкой во дворе. Причина продажи — переезд. Код пользователя: 54173 Номер в базе: 7791989 Купить 2-комнатную квартиру на улице Станционная в городе Тюмень.













































































