


154 761 ₽/м²
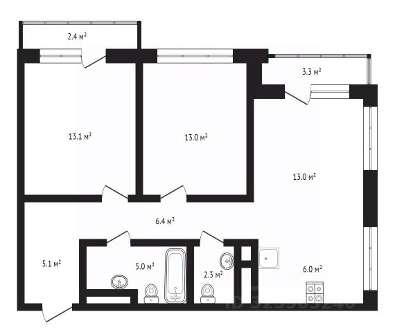
Продаётся квартира площадью 69.9 м2 в жилом комплексе "Айрис". Квартира находится на 12 этаже, жилая площадь квартиры 29.5 м2, площадь просторной кухни — 21.2 м2. Среди особенностей планировки — изолированные комнаты с окнами на одну сторону, 1 совмещённый санузел. Срок сдачи — III кв. 2027 Жилой комплекс "Айрис" — это: - фиджитал-квартал в Тюмени - дома высотой от 7 до 25 этажей - квартиры с системой "Умный дом" - цифровые технологии как элемент благоустройства Окружение В нескольких минутах ходьбы от дома — парк "Комарово" с волейбольной площадкой, открытым кинотеатром, зонами для барбекю и катком. Неподалеку от Airis находится центр иппотерапии, где можно покататься на лошадях и взять уроки верховой езды. На территории Airis появится собственный парк с прогулочными аллеями. Инфраструктура В 5-10 минутах от квартала открыты 2 детских сада и гимназия. На шопинг можно отправиться в торговые комплексы "Колумб" и "Кристалл" — они находятся недалеко от дома. Благоустройство Уютный двор — приватное пространство для жителей. В беседках можно будет почитать книгу в тишине, а в тени деревьев устроиться на пикник. На крыше многоуровневого паркинга будет лаунж-зона с кинотеатром, баскетбольная площадка и воркаут-пространство, где можно позаниматься с виртуальным тренером — достаточно отсканировать код. Лобби Интерьеры лобби выполнены в пастельных тонах с элементами фиджитал-решений. Для отдыха и ожидания гостей создана лаунж-зона. Также есть гостевые санузлы. Колясочные Возвращайтесь налегке после прогулки с малышом — оставить коляску можно в специальном помещении на первом этаже. Кладовые Для сезонных и габаритных вещей предусмотрены отдельные кладовые на цокольном этаже. В каждом помещении уже проведено электричество и выполнена стяжка пола. Паркинг На территории — два многоуровневых наземных паркинга. Один из них примыкает к домам — из него можно напрямую пройти в парадные. Планировки Планировки квартала — от компактной студии до сити-хауса с собственным палисадником — соответствуют любым жизненным сценариям. Можно выбрать квартиры с террасами и готовыми дизайнерскими интерьерами.





































































































































