


85 842 ₽/м²
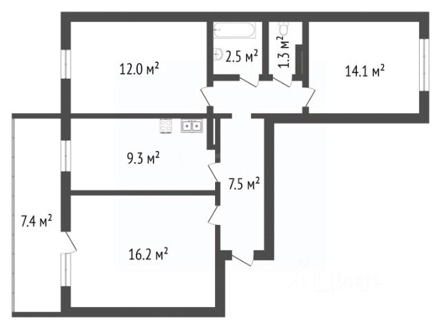
Просторная квартира формата 3+ расположена в кирпичном доме в районе "Маяк". Объект находится на среднем этаже, окна выходят на две стороны, обеспечивая хорошую инсоляцию и проветривание. Планировка практична и функциональна: три изолированные комнаты, кухня-гостиная, холл, лоджия и раздельный санузел. В квартире установлены пластиковые окна, выполнен косметический ремонт, состояние жилое, позволяющее заселиться сразу или реализовать дизайн-проект под свои предпочтения. Ключевым преимуществом является развитая инфраструктура в шаговой доступности: напротив дома расположена общеобразовательная школа 34 с углубленным изучением английского языка, вблизи находятся остановки общественного транспорта, магазины и детские сады. Район отличается спокойной атмосферой и всем необходимым для комфортной повседневной жизни. Объект представляет собой сбалансированное предложение по соотношению площади, планировки и локации. МЫ ГАРАНТИРУЕМ ФИНАНСОВУЮ БЕЗОПАСНОСТЬ ДЛЯ НАШИХ КЛИЕНТОВ. Код пользователя: 14956 Номер в базе: 4382595 Продам 3-комнатную квартиру в ипотеку в микрорайоне Маяк в городе Тюмень.


















































































