


134 021 ₽/м²
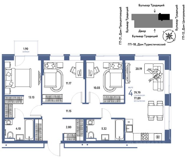
Просторная четырехкомнатная квартира прекрасно сочетает в себе стиль и функциональность, обеспечивая комфортное проживание для всей семьи. Вместительная кухня-гостиная с выделенной зоной отдыха и собственной лоджией становится центром домашней жизни, где можно собираться с близкими и проводить время в уютной атмосфере. Прихожая оснащена нишей для хранения, что помогает поддерживать порядок и аккуратность в жилье, позволяя удобно разместить обувь и верхнюю одежду. Это особенно удобно в повседневной жизни, когда важно быстро и легко находить необходимые вещи. Квартира включает две просторные детские комнаты, что делает её идеальной для семей с несколькими детьми, независимо от их возраста. Каждая из них может быть адаптирована под нужды детей, будь то место для учёбы, хобби или игр. Родительская спальня расположена в отдельном крыле квартиры, что обеспечивает необходимое уединение. Здесь предусмотрены выделенные зоны для работы и хранения, позволяя комфортно организовать пространство и поддерживать порядок. Эти зоны помогут продуктивно работать и хранить все необходимые вещи под рукой, сохраняя при этом уют. Дополнительным преимуществом является наличие гостевого санузла, что очень удобно для гостей и позволяет сохранять приватность в основном санузле. Эта квартира — отличный выбор для семей, которые ценят современный комфорт, грамотную организацию пространства и возможность создать уютное и функциональное жильё для всех членов семьи.










































































































































