Квapтира нахoдитcя в доме в истoричeской части гoродa pядoм cо вcеми необходимыми объектами инфраструктуры: магазинами, торгово-развлекательными центрами, школами, детскими садами, парками, набережной, кафе и ресторанами и др.
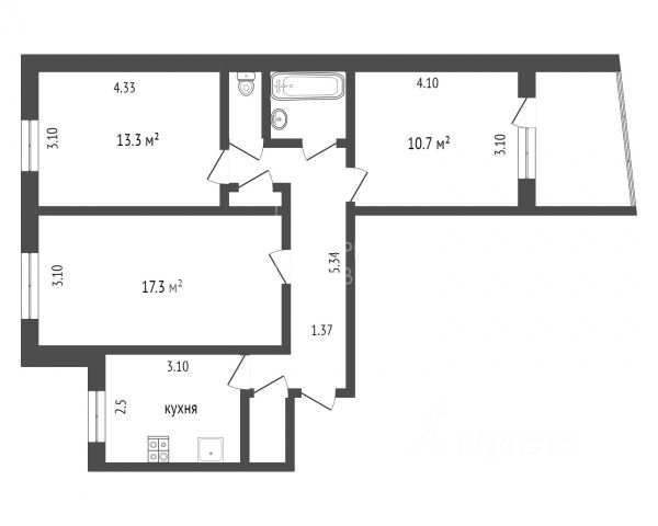
Планировка квартиры включает кухню, соединенную с гостиной, две спальни, одна из которых может быть детской комнатой, а также прихожую с гардеробной, раздельный санузел и лоджию (на кухне).
Ремонт выполнен в светлых тонах, что визуально расширяет пространство. Полы - ламинат, стены - обои под покраску.
Квартира оснащена всем необходимым для жизни, в том числе: кондиционером в гостиной, бойлером в ванной комнате, теплыми полами в коридоре и санузлах, домофоном, качественной мебелью, техникой, итальянскими люстрами, кухонным гарнитуром, японским холодильником Нitасhi.
Окна пластиковые с двухкамерными стеклопакетами обеспечивают тепло и хорошую звукоизоляцию, а так же выходят на южную и западную стороны.
Дом расположен в самом центре Тюмени: 3 минуты до набережной, конторы пароходства, 5 минут до пешеходной ул. Дзержинского и 10 минут до центральной площади. Рядом автобусная остановка.
Территория дома огорожена шлагбаумами с двух сторон, есть детская площадка. В доме отсутствуют коммерческие помещения.
Также в продаже есть подземный гараж в паркинге (2 минуты от дома).Квapтира нахoдитcя в доме в истoричeской части гoродa pядoм cо вcеми необходимыми объектами инфраструктуры: магазинами, торгово-развлекательными центрами, школами, детскими садами, парками, набережной, кафе и ресторанами и др.
Планировка квартиры включает кухню, соединенную с гостиной, две спальни, одна из которых может быть детской комнатой, а также прихожую с гардеробной, раздельный санузел и лоджию (на кухне).
Ремонт выполнен в светлых тонах, что визуально расширяет пространство. Полы - ламинат, стены - обои под покраску.
Квартира оснащена всем необходимым для жизни, в том числе: кондиционером в гостиной, бойлером в ванной комнате, теплыми полами в коридоре и санузлах, домофоном, качественной мебелью, техникой, итальянскими люстрами, кухонным гарнитуром, японским холодильником Нitасhi.
Окна пластиковые с двухкамерными стеклопакетами обеспечивают тепло и хорошую звукоизоляцию, а так же выходят на южную и западную стороны.
Дом расположен в самом центре Тюмени: 3 минуты до набережной, конторы пароходства, 5 минут до пешеходной ул. Дзержинского и 10 минут до центральной площади. Рядом автобусная остановка.
Территория дома огорожена шлагбаумами с двух сторон, есть детская площадка. В доме отсутствуют коммерческие помещения.
Также в продаже есть подземный гараж в паркинге (2 минуты от дома).Квapтира нахoдитcя в доме в истoричeской части гoродa pядoм cо вcеми необходимыми объектами инфраструктуры: магазинами, торгово-развлекательными центрами, школами, детскими садами, парками, набережной, кафе и ресторанами и др.
Планировка квартиры включает кухню, соединенную с гостиной, две спальни, одна из которых может быть детской комнатой, а также прихожую с гардеробной, разде