


161 507 ₽/м²
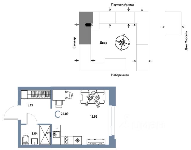
Просторная 1-комн. студия с предчистовой отделкой в ЖК "Зарека" на 11 этаже. Общая площадь: 31.33 кв.м. Высота потолков 2.7 м. Дом монолитный, многоподъездный, переменной этажности, от 8 до 16 этажей. Квартира находится в 5-й секции высотой 16 этажей в корпусе 2-1. На этаже 6 квартир. В подъезде 1 пассажирский и 1 грузовой лифт. Окончание строительства - 2 квартал 2029 года. Оформление сделки по договору долевого участия. Студия в жилом районе "Зарека". Особенности планировки: лоджия, предчистовая отделка. О доме Замкнутый квартал высотой 8 этажей с 16-ти этажной башней-доминантой и двором на стилобате двухуровневого паркинга. Дом 2.1 сочетает в себе приемы классической и современной архитектуры. Выразительность достигается благодаря симметричной композиции фасада, чередование массинга идет за счет эркеров и подрезок. Фасады первых этажей выполнены из клинкерного кирпича, выше - штукатурные. Акцентом на фасаде являются металлические импосты окон, темно-серого цвета, который будет контрастировать со светлыми оттенками самого фасада. квартиры в нашей базе: ЗРК02.1-Ж5.11.4. Проект На планировочную структуру "Зареки" повлияла близость к автомобильному мосту Челюскинцев. Мы расположили жилые здания так, чтобы они постепенно удалялись от проезжей части. Приём напоминает лесенку: чем сильнее мост возвышается над участком застройки, тем дальше по отношению к нему стоят дома. Этот ступенчатый сдвиг позволил нам сформировать буфер между кварталами и оживлённой магистралью. Мы намерены высадить здесь высокие деревья и создать дополнительную защиту от дорожных шума и пыли. В границах нашего участка мы намерены разместить школу и два встроенных детских сада на 135 и 150 мест. Общественные пространства С севера на юг территорию будет пронизывать пешеходный бульвар. Мы мыслим это общественное пространство как главный центр притяжения. На нём будут сосредоточены основные детские игровые и спортивные зоны, места для встреч и спокойного отдыха. Он также сыграет роль мостика, ведущего к другим нашим проектам — "Европейскому кварталу" и "Дому у озера". Одна из базовых идей мастер-плана касается береговой линии. Сегодня озеленение этой территории носит стихииныи характер, а прямому доступу к Туре препятствует дамба. Мы хотим благоустроить пространства у воды и открыть их для людей. Архитекторы спроектировали систему многоярусных троп и спусков к реке, смотровые площадки и места для активного отдыха и пикников. #z6E8W8









































































































