Первичная продажа



Ипотека 6%
ещё 14 акций
С отделкой
сдача ГК: 1 кв. 2026 года
5 340 000 ₽
244 954 ₽/м²
Условия покупки для этой квартиры:
Cтавка 7% для всех.
Срок ставки 7 лет.
Ежемесячный платеж 28 808 руб. в месяц.
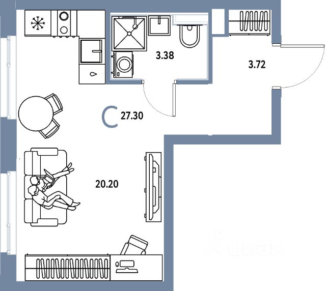
Первоначальный взнос 20,01% или 1 068 534 руб Студия площадью 21,8 м²
Студия с увеличенным окном — оно шире на 16%, чтобы впустить в квартиру больше света. Для одежды в прихожей ниша под шкафы.
В квартире предчистовая отделка: стены оштукатурены и выровнены по общему уровню, на полу слой цементно-песчаного раствора с дополнительным гидроизоляционным слоем в ванной. Проведена электрика и готовы розетки с выключателями. А ещё установлены сейф-двери и счётчики с телеметрией.
Квартал построен на улице Республики. Сдача в 2026 году. В районе развитая инфраструктура. Вокруг много школ и детских садов, есть качественные клиники и большой парк для прогулок.
В закрытых дворах без машин детские и спортивные площадки в окружении озеленения растениями, подходящими по климату. Чтобы было безопасно, по периметру домов работает видеонаблюдение. Для машин продуман многоуровневый паркинг рядом с домом.
ЖК построил ПСК Дом девелопмент — застройщик с фокусом на развитие Тюмени с 26-летним опытом на рынке недвижимости.
Способы покупки:
— ипотечные программы
— обмен вашего жилья на новую квартиру
— дистанционная покупка
— рассрочка
Узнать дополнительную информацию и записаться на встречу в офисе продаж можно по номеру, указанному в объявлении.








































































































































