Только на Циан
5 400 000 ₽
Предлагается к строительству индивидуальный загородный дом 80 кв.м в живописном СНТ Большое Царёво-2 — идеальное решение для тех, кто мечтает о собственном уютном уголке вдали от городской суеты!
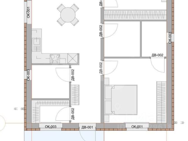
Общая площадь дома составляет 80 кв.м., а продуманная планировка включает три просторные спальни, светлую кухню-гостиную, совмещенный санузел, прихожую и котельную.
Дом построен из керамзитоблока, утеплен пенопластом и облицован качественным кирпичом, что гарантирует долговечность и надежность.
Внутри будет выполнен чистовой ремонт - в спальнях ламинат, в остальных помещениях керамогранит, будет установлен натяжной потолок, напольный плинтус, поклеены обои.
Все необходимые коммуникации уже подключены, и вам не придется беспокоиться о своем комфорте!
СНТ Большое Царёво-2 — одно из самых востребованных и развивающихся СНТ в нашем городе. Здесь есть все для комфортной жизни, а также регулярное сообщение с городом благодаря общественному транспорту, что сделает вашу жизнь еще более удобной.
Не упустите уникальную возможность стать владельцем этого замечательного дома по семейной ипотеке! Это ваш шанс сделать шаг к мечте о загородной жизни, где вы сможете наслаждаться природой и спокойствием. Звоните прямо сейчас, чтобы узнать подробности и записаться на просмотр! Ваш идеальный дом ждет вас, и он готов стать местом, где сбудутся все ваши мечты!
МЫ ГАРАНТИРУЕМ ФИНАНСОВУЮ БЕЗОПАСНОСТЬ ДЛЯ НАШИХ КЛИЕНТОВ.
Код пользователя: 140076
Номер в базе: 12253395



























































