


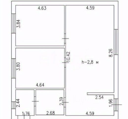
Продаётся тёплый современный дом 94 м² на участке 9 соток. Рассмотрим обмен на 3-4 ком квартиру в городе !!! Дом для комфортной жизни, построенный с любовью для себя! Это редкое предложение, где каждая деталь продумана для круглогодичного проживания без хлопот и дополнительных вложений. О Доме (94 м²): Просторная планировка: 2 изолированные спальни по 18 м² и огромная кухня-гостиная 38 м² — идеально для жизни и приёма гостей. В гостиной пространство грамотно разделено на кухонную зону и хону отдыха. В гостиной установлен красивый кухонный гарнитур с техникой, обеденный стол. В зоне отдыха качественный угловой диван, зона ТВ. При входе просторная прихожая. Санузел совмещенный. Ремонт и отделка: Использованы только качественные материалы. На полу ламинат, на стенах обои нейтральных оттенков. Санузел в кафеле. Всё в отличном состоянии, так как домом пользовались всего 1,5 года. Инженерные системы: Отопление: Водяные тёплые полы (11 контуров) по всему дому. Электричество: Мощная выделенная линия 380 В, 15 кВт. Вентиляция: Кондиционер Aeron для комфортного микроклимата летом. Интернет: Оптический кабель заведён в дом (высокоскоростной интернет без проблем). Ключевые преимущества: Энергоэффективность: Дом построен из керамзитоблока (300 мм) и утеплён пенополистиролом (50 мм). Система водяных тёплых полов (11 контуров) обеспечивает равномерное и экономичное отопление. Все центральные коммуникации: Не нужно вкладываться в подключение — всё уже есть и работает. Участок 9 соток с полным комплексом удобств для семьи. Участок отсыпан глиной и суглинком. Большая парковка на 4 автомобиля, детская площадка, ведутся работы по устройству бани , подготовлены опоры для навеса под авто. Коммуникации: Собственная скважина 25 м + система водоочистки, усиленный септик "Армада" на 10 м, газовый стояк выведен на границу участка (возможно подключение). Все коммуникации заведены в дом под землёй. Расположение: Широкие дороги, которые чистят зимой. Рядом пожарный водоём. В шаговой доступности красивый лес. Тихое место с чистейшим воздухом! Дом строили для себя! Это решение для тех, кто ценит качество, готовность и не хочет терять годы на стройку и ремонт. Звоните, чтобы назначить просмотр! МЫ ГАРАНТИРУЕМ ФИНАНСОВУЮ БЕЗОПАСНОСТЬ ДЛЯ НАШИХ КЛИЕНТОВ. Код пользователя: 61142 Номер в базе: 9589931 Продам дом в СНТ Виктория-1 городского округа Тюмени.
















































































