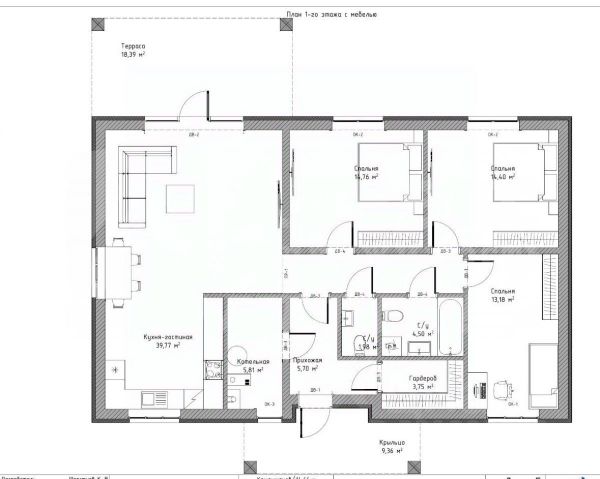
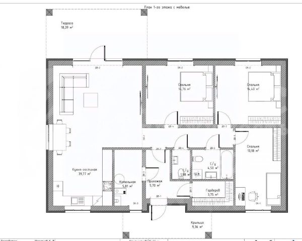
Покупай сейчас - плати потом! На данный объект доступна рассрочка на выгодных условиях СРОЧНО! Дом в СНТ "Якорь" рядом с городом Продается земельный участок в обжитом СНТ "Якорь" по Велижанскому тракту — всего 10 минут до города! На участке расположен не достроенный дом ! На участке расположен модульный дом заведена центральная вода, свет, интернет, стабилизатор света. В доме можно проживать на постоянной основе в зимний и летний период. В каркасный дом также заведено электричество и центральная вода. Преимущества участка: • Участок ровный, межевание выполнено • Категория: земли населенных пунктов, назначение ведение садоводства • Газ, электричество и центральная вода уже в СНТ • Зимой дороги чистят, добраться можно в любое время года О СНТ: • Обжитое и охраняемое общество • Закрытая территория • Почти все проживают круглогодично • Два магазина на территории • Остановка автобусов 120 и 128к — всего в 700 метрах • Ходит школьный автобус Отличный вариант для тех, кто хочет жить в тишине, но рядом с городом! Звоните — покажу участок в удобное для вас время. Возможна рассрочка и торг! МЫ ГАРАНТИРУЕМ ФИНАНСОВУЮ БЕЗОПАСНОСТЬ ДЛЯ НАШИХ КЛИЕНТОВ. Код пользователя: 140076 Номер в базе: 8893005 Продается дом на улице Рябиновая в садовом товариществе Якорь в городе Тюмень.

















































































