


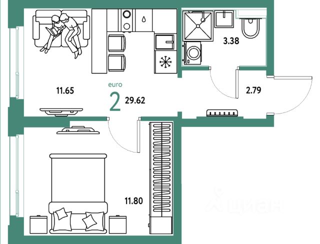
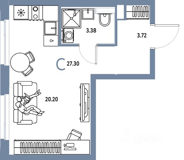
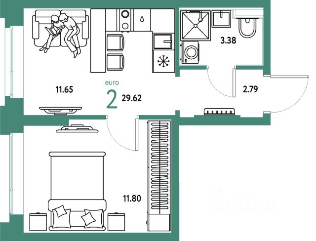
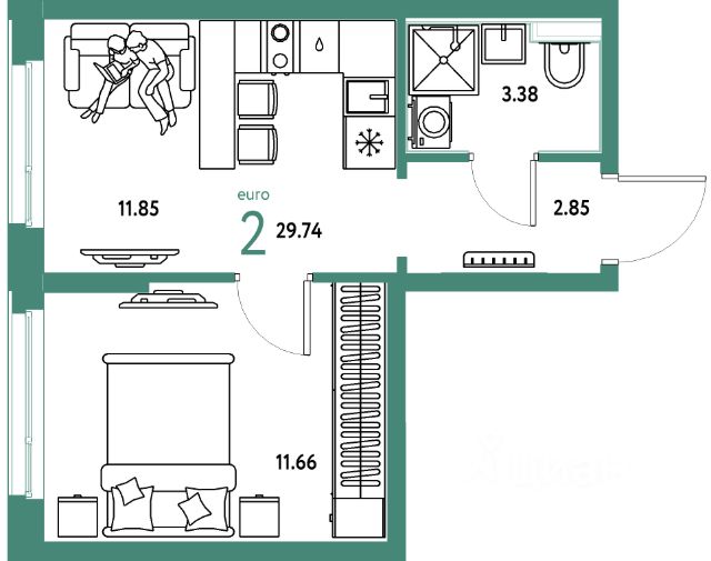
207 397 ₽/м²
Жилой комплекс "Румянский" — дом с большими перспективами в пяти минутах от центра Тюмени для тех, кто не представляет жизнь без теплых вечеров в кругу семьи и приятных эмоций. Он воплощает мечты об уютном гнёздышке и отвечает "Да!" на любые запросы семей. Продуманные квартирные решения, безопасный закрытый двор с развивающими детскими площадками и близость к центру города. Все это значительно упрощает жизнь и оставляет больше сил на главное — время, которое можно провести с любимыми. В рецепте счастья кроется секретный ингредиент от застройщика — возможность приобретения готовых квартир с ремонтом. Именно он создает тот самый, неповторимый вкус новой жизни. Здесь всегда есть место семейным традициям и стремлению вперёд. Дети готовы к школе и приключениям. Родители открывают своё дело и занимаются саморазвитием. А студенты уверенно вступают во взрослую жизнь.


























































