202 095 ₽/м²
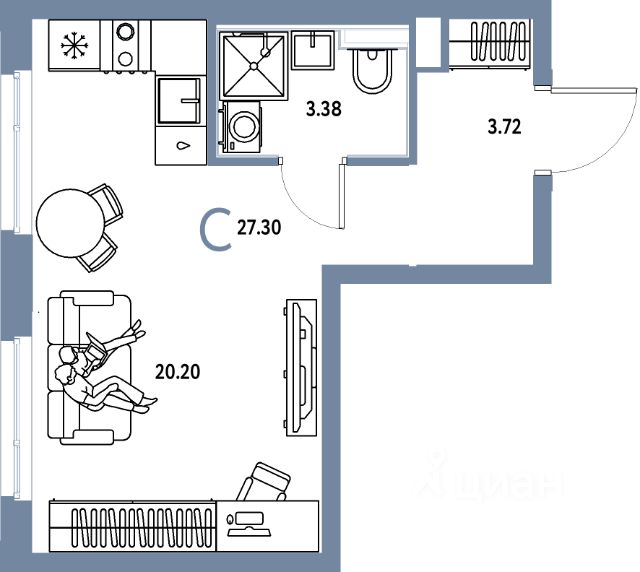
Продаётся 1-комнатная квартира в строящемся доме (Квартал Инженеров (ГП-7)), срок сдачи: IV-кв. 2027, общей площадью 27.69 кв.м., на 16 этаже. Новый жилой комплекс "Сердце Сибири" расположился в центре Тюмени в границах улиц 50 лет Октября-Пермякова-Харьковская. Проект комплекса включает 8 домов переменной этажности с многоуровневыми паркингами, большой бульвар для пеших прогулок и детский сад под окнами. Дома квартального типа образуют тихие приватные дворы, закрытые от машин и случайных прохожих.











































